Sold STC

Introducing an exceptional opportunity to acquire this three-bedroom semi-detached house, brimming with character and presenting a coveted detached garden annexe. Set in a highly sought-after location, within a 20 minute walk of Worcester City Centre.
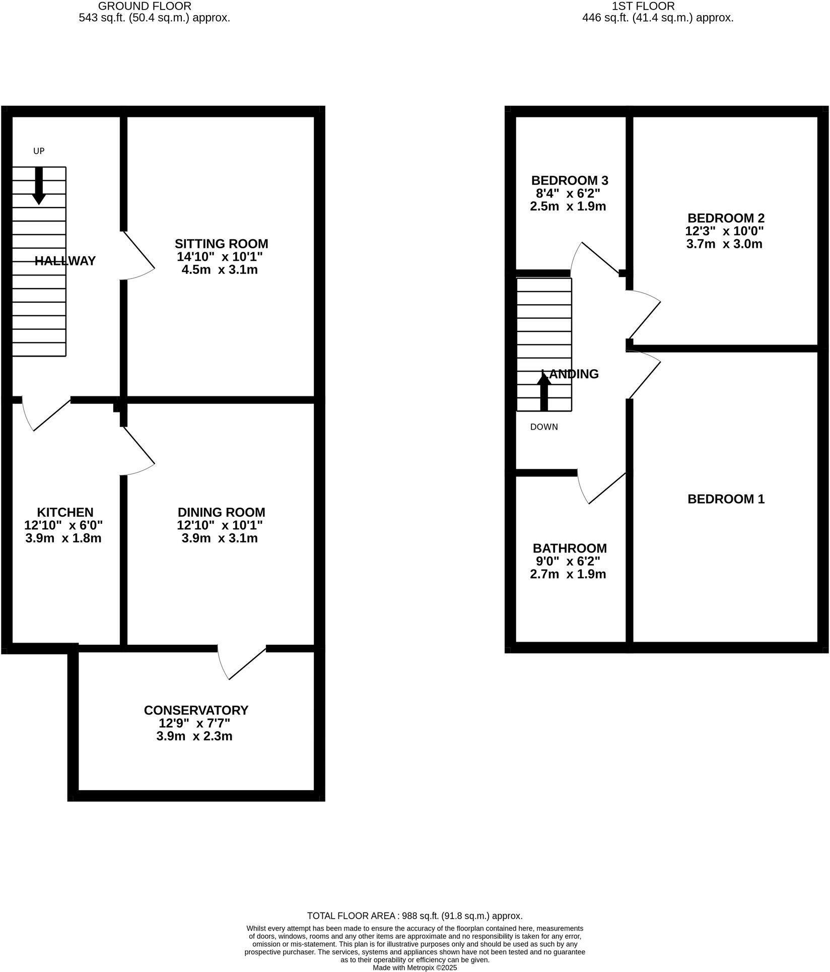
The property's facade showcases a striking bay-fronted design, lending a touch of elegance to its overall appeal. Step inside to discover a well-appointed lounge, offering a bay window that bathes the room in natural light and a feature fireplace adding a touch of warmth and sophistication. The entrance hall boasts ornate panelling, a nod to the property's rich heritage and attention to detail.
Perfectly appointed at the rear of the property is a double glazed conservatory, providing a tranquil retreat overlooking the colourful rear garden. The garden itself is a haven of serenity, boasting a lawn, a picturesque pond enhancing the natural beauty of the space, and a detached annexe offering versatile accommodation options with the convenience of an electric supply. The annexe having a lounge, kitchen room, bedroom and mezzanine area.
Situated within a 20-minute stroll to Worcester City Centre, residents have easy access to an array of amenities, including shopping, dining, and entertainment options, ensuring a lifestyle of comfort and convenience.
In summary, this three-bedroom semi-detached house represents a rare opportunity to own a home of elegance and versatility, with the added allure of a detached garden annexe for endless possibilities. Imbued with charm and character, and situated in a prime location, this property is a true gem waiting to be discovered and cherished by its next owner.
Interested in this property?
Call us on 020 3858 0695