
FAIRHOLME ROAD, W14
£995,000
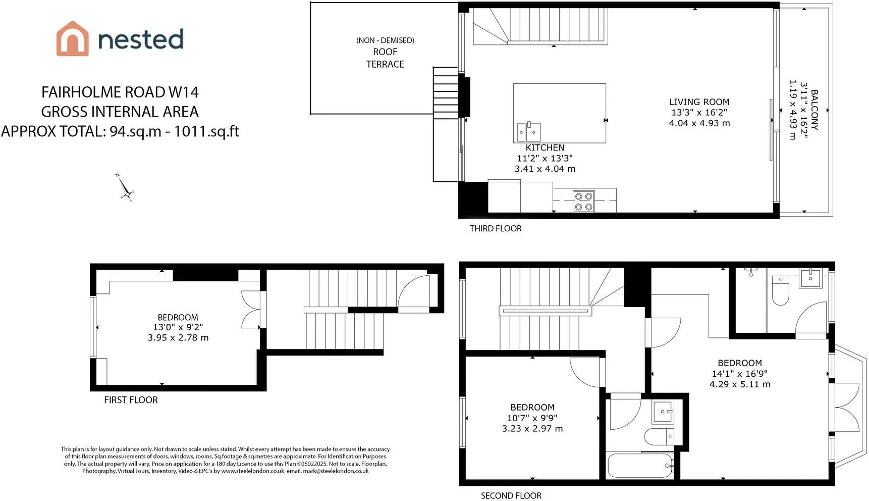
A beautifully presented upper floors split-level maisonette, with an en-suite bathroom to the main bedroom and a second bathroom. Refurbished and extended to a high standard with further scope to extend further.
With two roof terraces (one non-demised), two further bedrooms, and a stunning light and airy open plan living, dining and kitchen on the top floor, leading to front and rear terraces.
Forming part of an attractive mid-terraced Victorian property in a sought-after residential road. The property is well placed within a 5-minute walk to West Kensington and Barons Court underground stations, the shops, cafes and restaurants in North End Road, and Barons Court and easy access to the A4 if driving in and out of London.
Features:
Three Double Bedrooms
Two Bathrooms (one en-suite)
Open Plan Kitchen, dining and Reception on top floor.
Two roof terraces (one non-demised)
Over a 1,000 Sq.Ft
With the benefit of a new 175 yr lease
Interested in this property?
Call us on 020 3858 0695