
This newly refurbished and immaculate 1 bed flat situated in a stunning Georgian Grade II listed building on Clapham Road, SW9, is available now through Nested. Great care has gone into the re-design of this flat and the incoming purchaser will benefit from a wealth of original features including two lovely fireplaces, beautiful cornicing and huge sash windows flooding the property with natural light.
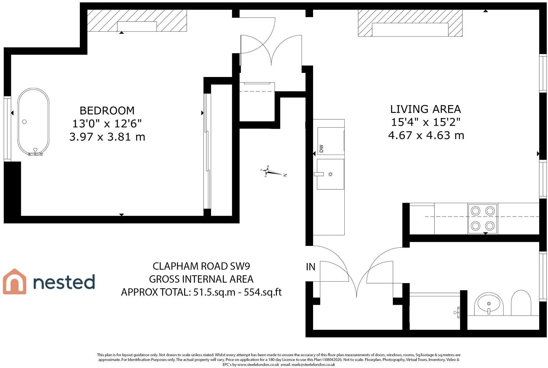
Spanning across 554 square foot, the property has an open-plan living/ kitchen area, a large bathroom and a sizeable bedroom with plenty of storage and a stand alone bath tub.
Situated a short two minute walk from Clapham North Underground (Northern Line) and 6 minutes from Stockwell Underground (Victoria Line), you’re extremely well connected. For local amenities, you have Clapham High Street, Clapham Old Town and Clapham Common all within walking distance.
Some words from the owner:
What do you love about the property?
The high ceilings and the large windows. The original features like the fireplaces and the cornicing. It’s bright and airy. I love the location too.
Why are you moving?
I’m upsizing
What do you love about the area?
It’s so close to the tube with great transport links and I love being so close to Clapham high street with all its bars, restaurants and everything else you should need on your doorstep and a short walk from Clapham Common too.
Interested in this property?
Call us on 020 3858 0695