
CALL JAY-B Now for a Viewing !
Delightful end-of-terrace home, full of potential and offers a fantastic opportunity for buyers looking to update and make a property their own.
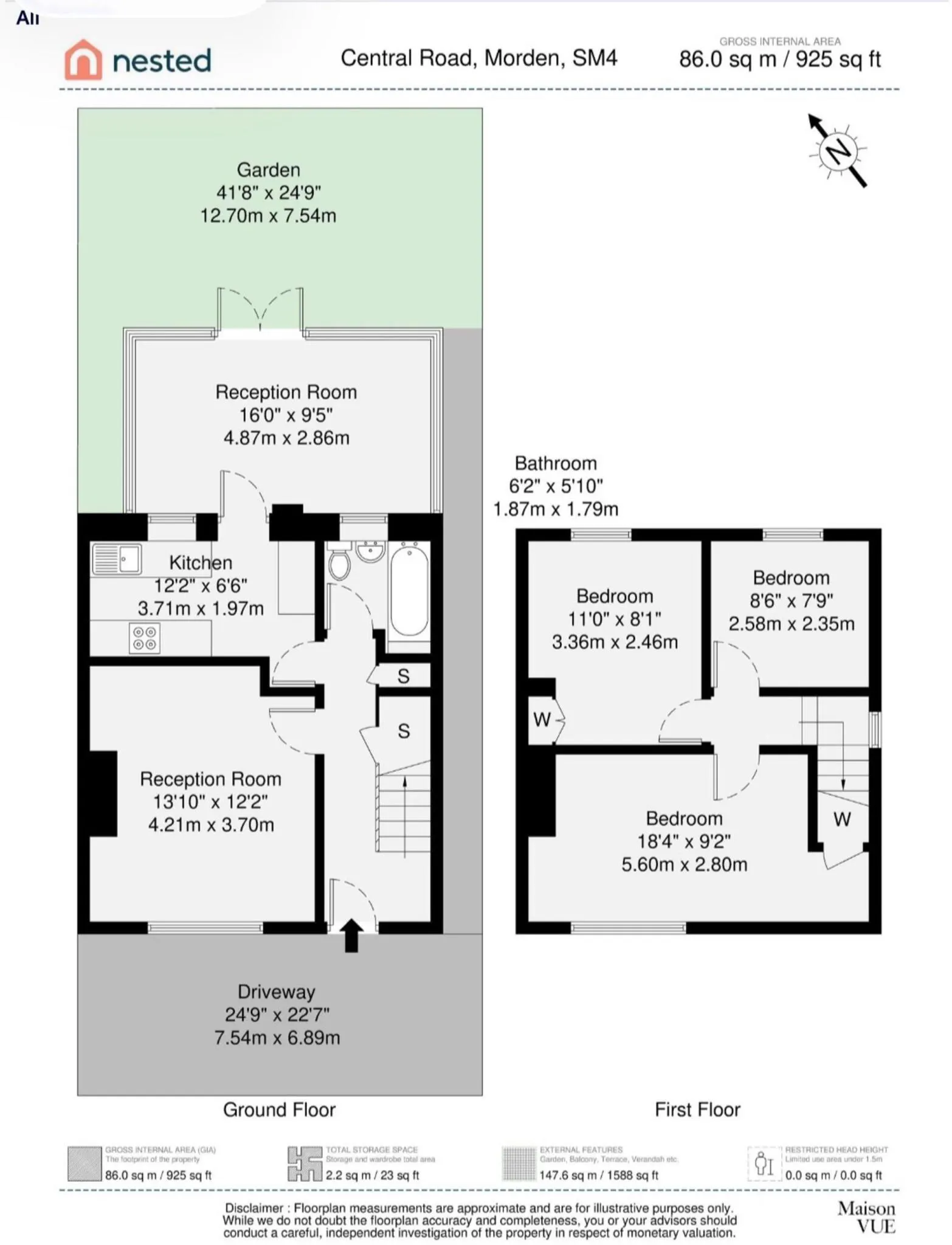
The ground floor includes a separate front reception room, fitted kitchen, bathroom, and bright conservatory. Upstairs are two double bedrooms, a single bedroom and access to the loft.
The real standout feature is the generous South-East facing garden—sunny, private, and beautifully presented. There’s also a driveway for two cars and useful side access.
Situated in a popular residential area within an easy walk to Morden Underground (Northern Line), bus routes, schools, and everyday amenities, this is a great opportunity for anyone looking to put their own stamp on a property.
A solid, well-laid-out home with plenty of scope to improve or even extend (subject to planning).
Viewings are highly recommended.
Interested in this property?
Call us on 020 3858 0695