Sold STC

Set on a quiet, tree-lined street within the Larcom Street conservation area, this truly beautiful 4 bedroom Georgian house sits just moments from Elephant Park, and walking distance to the city, offering a rare balance of established neighbourhood feel and central London convenience.
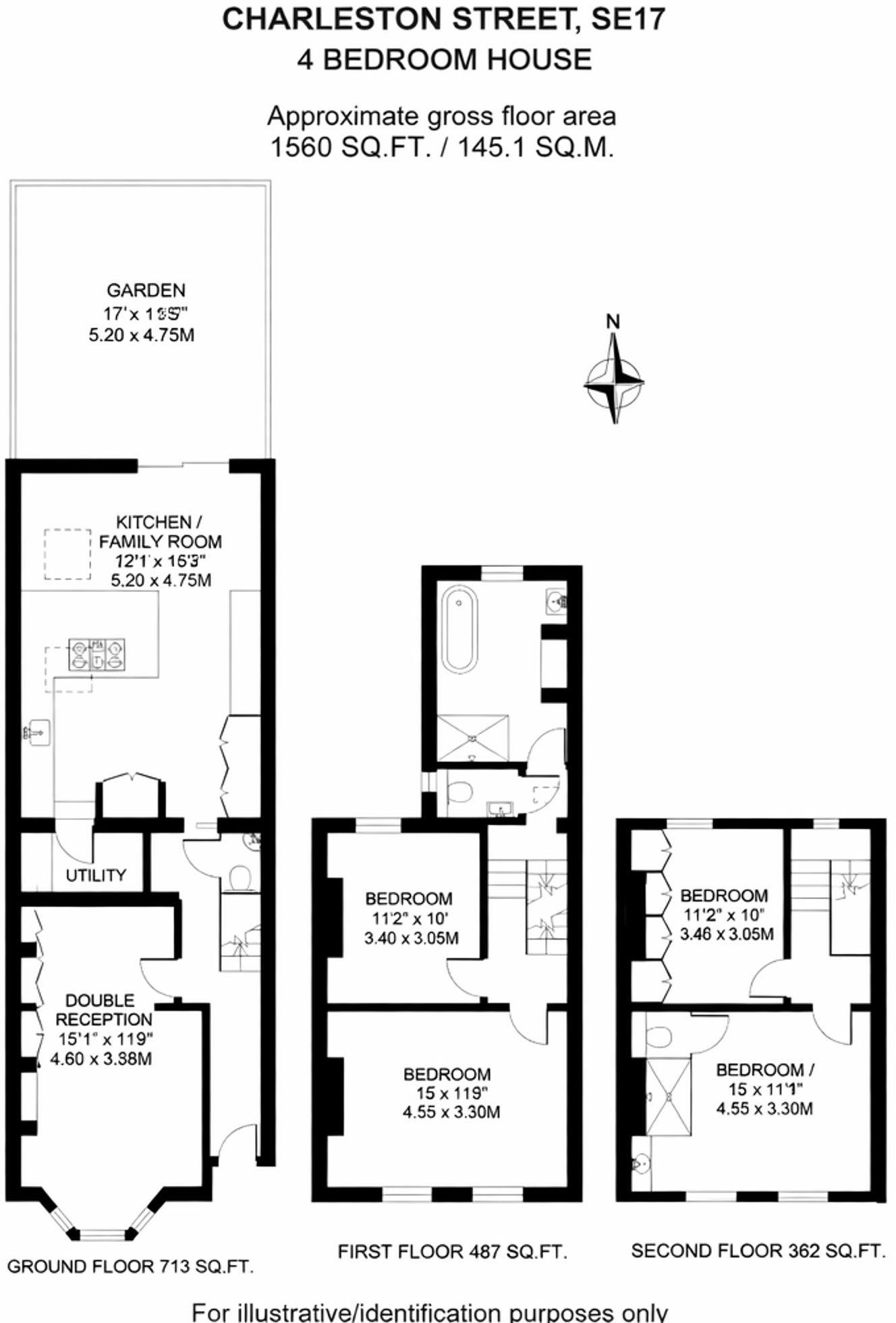
The ground floor opens into a wide entrance hall with high ceilings and original wooden floors with an alcove / nook off the hallway to store coats and shoes. To the front is a generous double reception room with a bay window and log burner. Having undergone a high quality side return extension in 2022, the open plan kitchen living area at the rear, with underfloor heating, is a perfect space for family dining and entertaining, with natural marble worktops and a large island with integrated storage and seating. The garden itself is peaceful and elegant with fruit trees, roses and wisteria, enjoyed all year through the huge patio doors.
The first floor comprises two double bedrooms and a spacious family bathroom with a freestanding bath, separate walk-in shower and a separate WC. The second floor offers two further double bedrooms, including a principal bedroom with a contemporary en-suite finished in Carrera marble.
Charleston Street is ideally positioned for Elephant & Castle, combining the feel of an established residential neighbourhood with the energy of the ongoing regeneration. Nearby Burgess Park offers ample green space and weekly parkruns. Elephant Park is moments away, with its award-winning landscaped gardens and expanding array of cafés, restaurants and independent shops. Heygate Street has emerged as a vibrant local hub, featuring popular spots like Noko, Gail's and The Rosy Hue for a thriving food and social scene right on your doorstep
Elephant & Castle station (National Rail, Northern and Bakerloo lines) is approximately 0.6 miles away, providing fast connections into the City, West End and beyond. Kennington station is also within easy reach, while frequent bus services along Walworth Road offer excellent connectivity across central London.
If you’re interested in this property, please enquire with Sophie to discuss and book.
Disclaimer: This property is currently very well looked after by tenants. Photos have now been updated (14th Jan 2026)
Interested in this property?
Call us on 020 3858 0695