Sold STC

This ground floor flat is just off Hither Green Lane, with a private south-facing garden offers flexible accommodation and an excellent opportunity for first-time buyers, downsizers, or investors in a well-connected SE13 location.
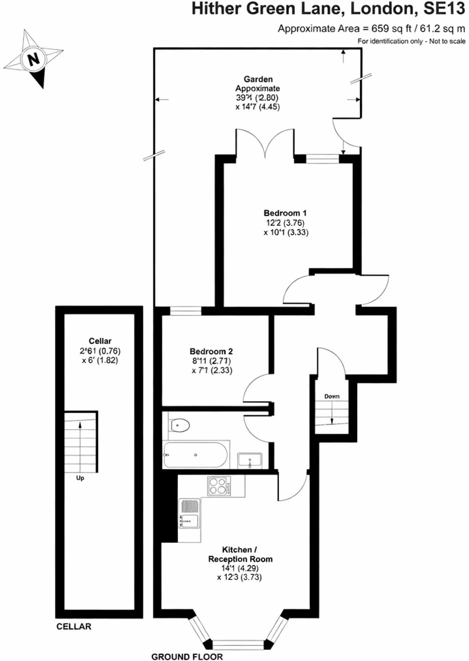
The property is accessed via a private entrance to the rear and is arranged across the ground floor of this period building. The flat is well maintained and offers a practical layout with good natural light throughout. The reception room is positioned to the front and features a bay window, creating a bright living space with an open-plan L-shaped kitchen.
To the rear of the property are the bedrooms and bathroom. The main bedroom has direct access onto the private south-facing garden, which is a real feature of the property and provides excellent outdoor space for entertaining, gardening, or working from home in the warmer months.
Historically, the property was arranged as a large one-bedroom flat and has since been reconfigured to create a second bedroom. As a result, the property now offers flexible accommodation and could suit buyers looking for either a small two-bedroom property, or a spacious one-bedroom flat with a separate study, dressing room, or guest room.
Further benefits include a cellar for additional storage, a long lease, low outgoings, and a private garden.
Leasehold: 93 years remaining
Ground Rent: £10 per annum
Service Charge: £636 per annum
Council Tax: Band B
EPC Rating: C
Interested in this property?
Call us on 020 3858 0695