Sold STC

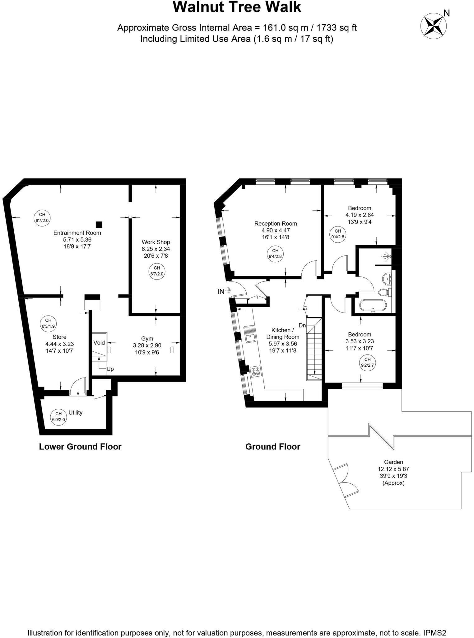
A beautifully converted historical pub with plenty of character, this 2 double bedroom apartment is perfect for couples, small families and professionals. More spacious than your average 2 bed flat in Zone 1 and 2. This property also stands out with a very large basement, though no natural light, it is an excellent space for a game room / bar / art / music.*
Located on the corner of Walnut Tree Walk and Lambeth Walk, the flat is within a range of excellent shops, bars and restaurants. Strong transport links including: Lambeth North tube (5 mins), Vauxhall tube and overground, Kennington tube and London Waterloo national rail within easy walking distance, as well as excellent local bus routes (159, 59 & N109), which will provide 24 hour access to the City and West End. The property is also only a short walk from the Imperial War Museum, Garden Museum and the new Damien Hirst gallery on Newport Street. It is within 15 minutes walking distance of key landmarks including Southbank, The National Theatre, The New/Old Vic Theatres, Tate Britain, Big Ben and The London Eye, to name just a few.
*A note for developers: whilst the basement is tanked, there are no lightwells and it is not possible to convert this to another official floor / flat.
Please get in touch with Sophie at Nested to arrange your viewing!
Interested in this property?
Call us on 020 3858 0695