
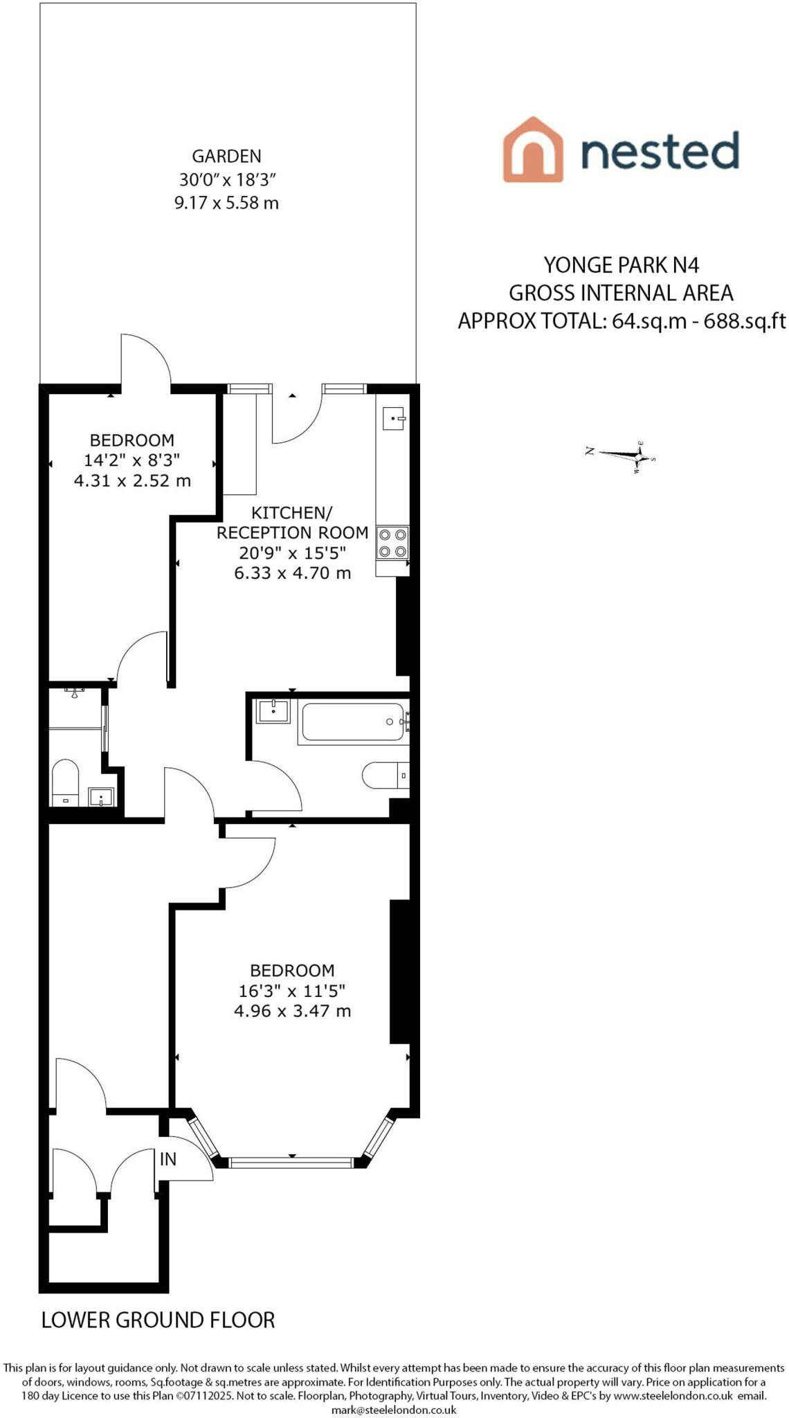
Introducing a well presented, move-in ready, Victorian Terrace two bedroom flat, boasting two bathrooms and a garden, set in a prime location.
The apartment features an open-plan reception/kitchen that leads out onto a private section of the garden. Both bedrooms are spacious and offer an ample amount of storage.
The apartment is ideally located for easy access to Finsbury Park Station (Piccadilly line, Victoria line, National Rail) as well as numerous bus routes connecting you to The City, West End and beyond. The green open spaces of Finsbury Park are within close proximity as well a great selection of amenities including supermarkets, eateries, independent coffee shops, wine bars and bakeries.
Interested in this property?
Call us on 020 3858 0695