
++++++++ THE VENDOR IS LOOKING FOR CASH BUYERS ONLY ++++++++
As fresh as a spring morning and as bright as a button this stunning brand new upgraded 2-bedroom apartment with En-Suite offers waterside living on the banks of the canal, a unique residential proposition for Manchester. Beautifully presented this is an exceptional signature property set on the third floor and with lift access. The building itself is a clever re-incarnation of a landmark 18th century mill building prominent and South facing on the skyline. With houseboats and cobbled pathways bordering the slow flow of the canal, the flat has a fabulous open view.
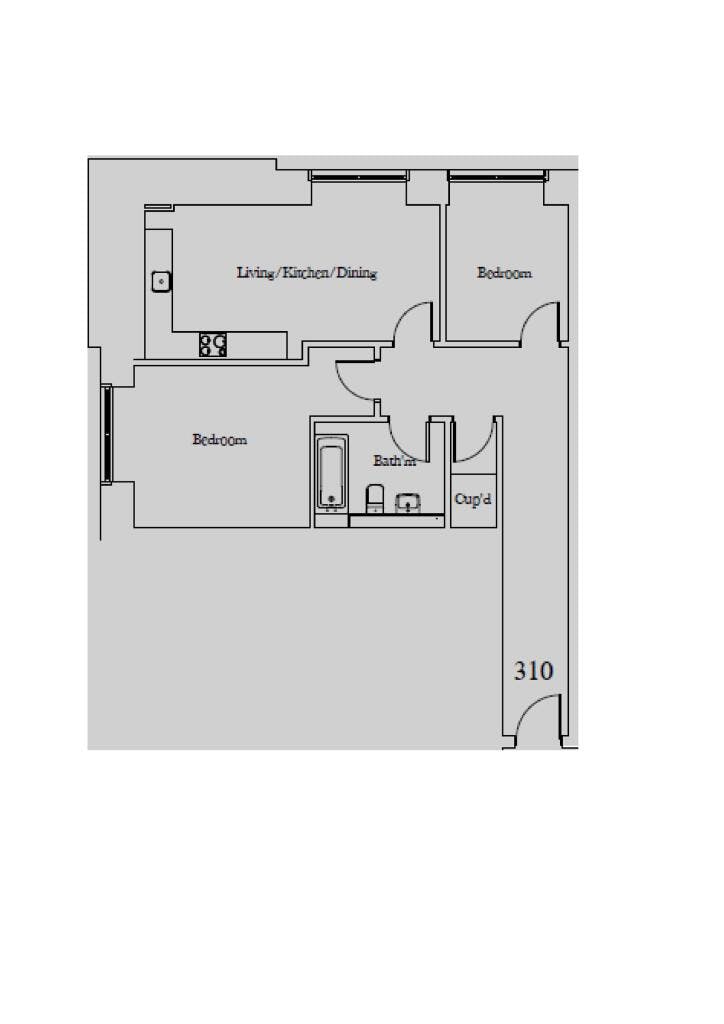
Brilliant, Bold & Beautiful – with an air of comfortable affluence – This stunning apartment boasts a bespoke luxurious interior, 791 sq. ft of immaculate living space. A true urban statement
2 Bedroom warehouse style apartment in a beautiful Grade 2 Listed building at a fantastic price.
Brand New ready to move in or ideal for a Buy to Let Investor
This property is located in the heart of the thriving East Manchester area of regeneration. Since the early 2000's, the area has been the recipient of several billion pounds of public and private investment that has created new places to live, work, shop, dine out and be entertained.
A Landmark Development:
• Refurbished by one of the UK’s most reputable developers
• 85 high-spec apartments
• Only a handful of units remaining – including the final 1-bedroom apartments
• Luxury High Specification Fixtures & Fittings
• Prime Central Location with Exceptional Rental Demand
Interested in this property?
Call us on 020 3858 0695