Sold STC

***CLOSING DATE SET FOR FRIDAY 4TH JULY AT MIDDAY***
***EMAIL AGENT FOR INFO***
Presenting a very rare opportunity to own a remarkable 4-bedroom detached house in an enviable coastal location. Originally the current owners' family home, this property has more recently been operated as a successful bed and breakfast establishment. Situated on the popular NC500 tourist route, this property presents an exceptional business opportunity for those seeking to play a part in the thriving tourism industry of the area.
Upon arrival, you will be distracted by the amazing views across Loch Broom as you enter the private off-road car parking area, ideal for accommodating guests or multiple vehicles. Conveniently located in proximity to local services and a ferry terminal, this property offers both accessibility and convenience for residents and potential guests alike.
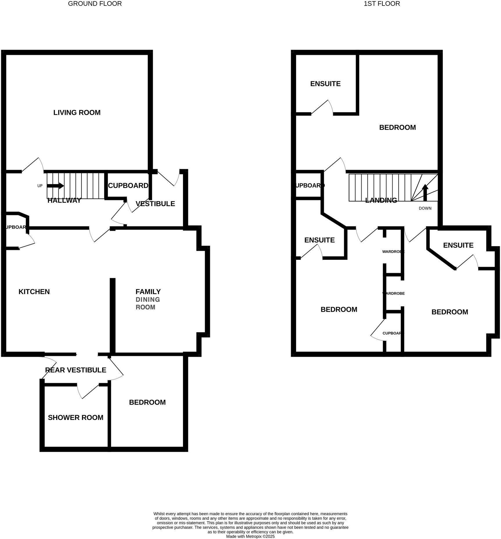
Internally, the accommodation of this detached villa consists of a Lounge, Modern Kitchen with adjoining Family Dining Room, Bedroom and Shower-room on the ground floor. The upper floor consists of three double bedrooms all with en-suites, providing luxurious and private accommodations for occupants. The property is presented in excellent decorative condition, with double glazed windows and doors, enhancing both aesthetics and energy efficiency. To ensure comfort all year round, the property benefits from oil-fired central heating with a condensing boiler, providing an efficient and reliable heating system.
Externally, the property features a private garden, complete with a summerhouse and shed, offering a tranquil space for relaxation and outdoor activities.
In summary, this property represents a unique opportunity to acquire a stunning residential home or a lucrative business venture in a prime coastal location. This well-presented house with its spacious accommodation and modern amenities, is sure to appeal to those seeking a wonderful combination of lifestyle and investment potential. Don't miss out on the chance to make this exceptional property your own and embark on a new chapter in coastal living.
Interested in this property?
Call us on 020 3858 0695