Sold STC

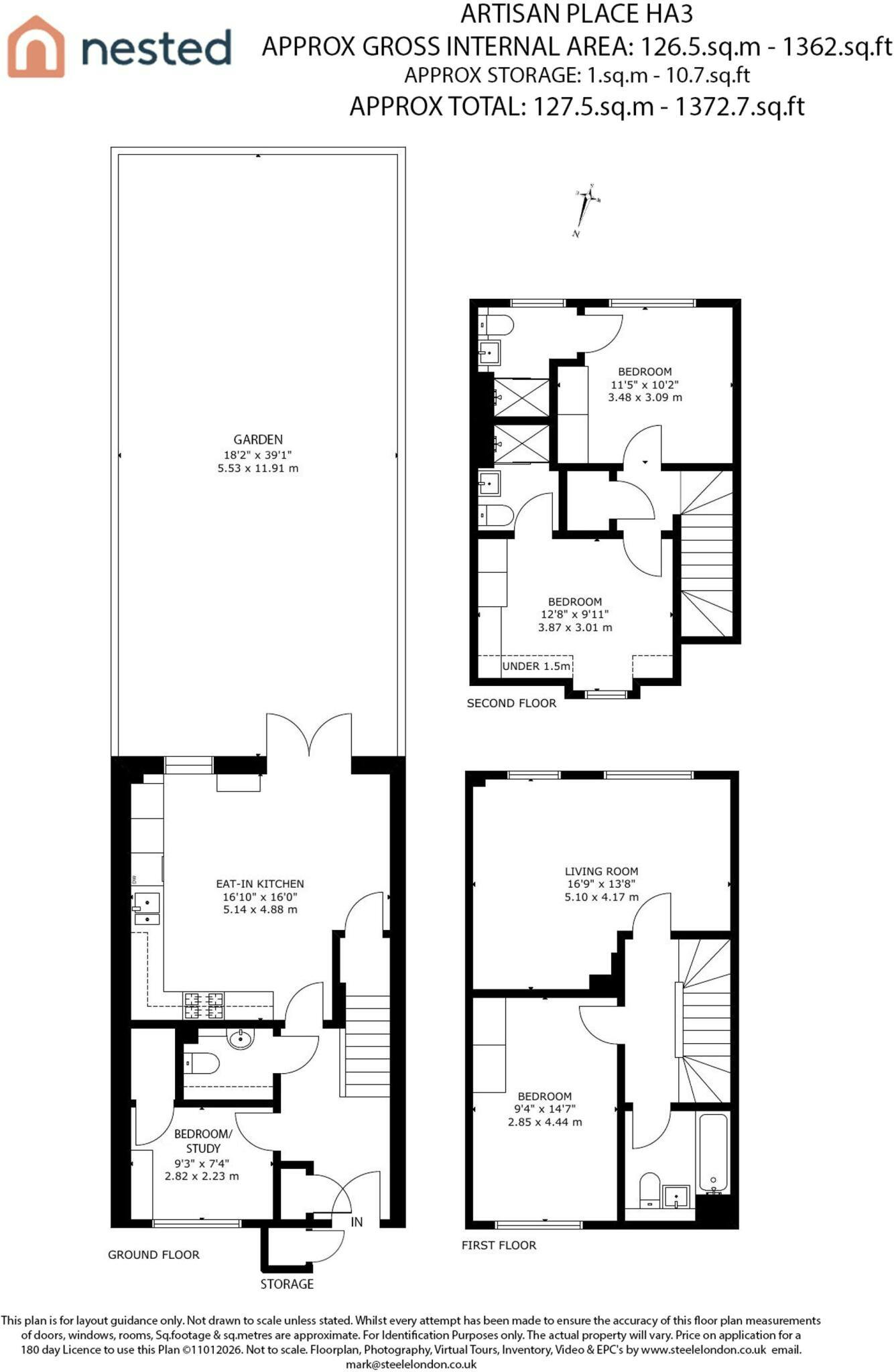
Meticulously maintained and clearly much loved, this spacious family home offers flexible accommodation arranged over three floors. The upper levels comprise three well-proportioned bedrooms, two with en-suite facilities in addition to a main family bathroom. On the ground floor, a fourth bedroom or study sits alongside a guest WC, making it ideal for modern family living or home working.
Bright and versatile living spaces are finished to a high standard throughout, centred around a generously sized contemporary kitchen/diner that opens directly onto a 39ft private garden. The garden features a patio area and low-maintenance artificial lawn, creating an ideal space for both everyday living and entertaining. Further benefits include excellent built-in storage, allocated off-street parking, central heating and double glazing.
The property forms part of the sought-after Artisan Place development and is conveniently located within easy walking distance of Wealdstone High Street, with its range of shops, cafés and local amenities, as well as several well-regarded primary and secondary schools.
Harrow & Wealdstone station is also a short walk away, offering London Overground, Bakerloo line and fast National Rail services into Central London. Euston can be reached in approximately 15 minutes, making this an ideal home for commuters.
Interested in this property?
Call us on 020 3858 0695