
GUIDE PRICE 575,000 - £625,000 | Set in a peaceful spot with green space right across the road and regeneration happening nearby, this end of terrace home offers generous space across three floors. With just under 1,200 sq ft of internal space and one of the largest living rooms you will find in a home like this without an extension, it is perfect for families or buyers needing extra room.
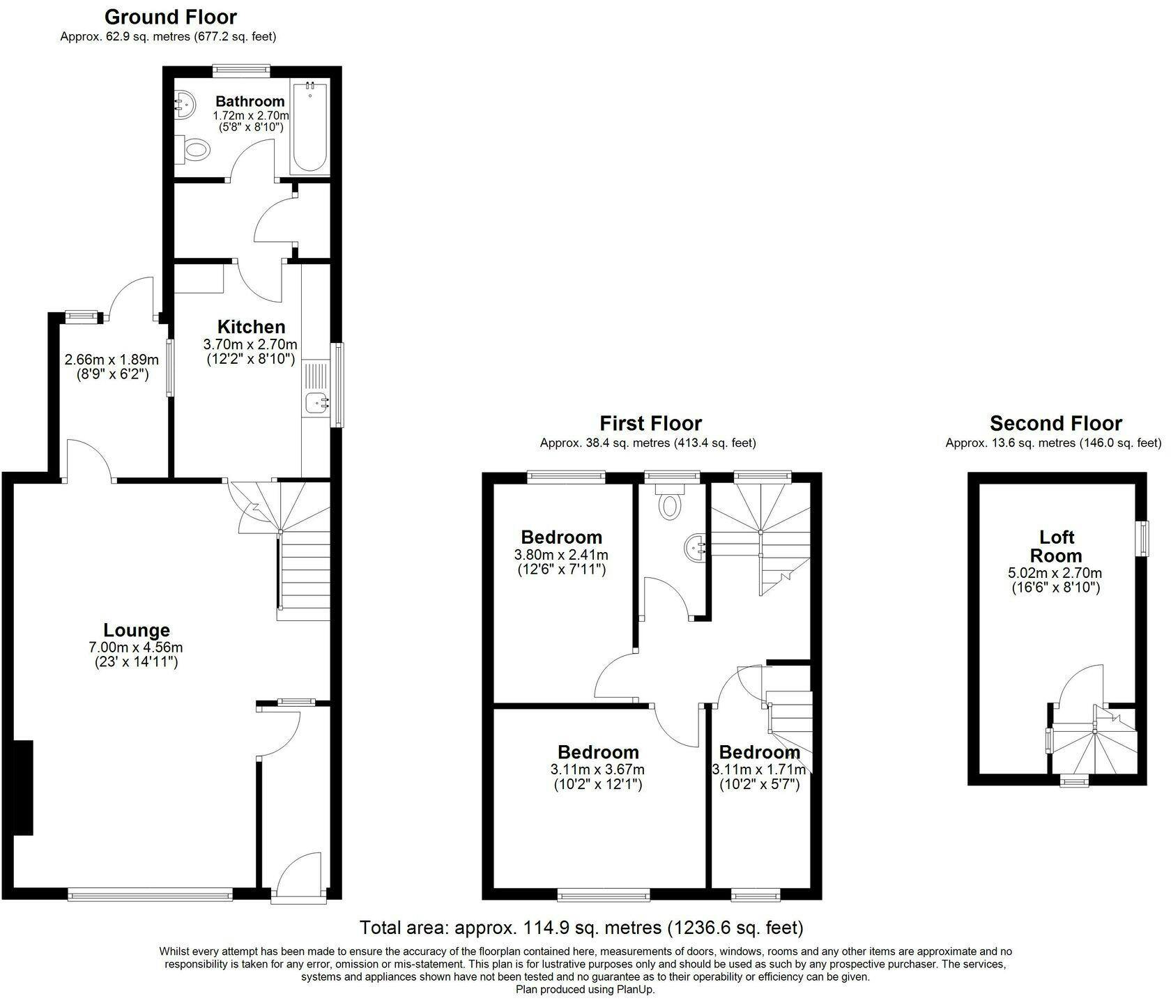
Ground Floor
You enter into a central hallway with stairs leading upstairs. To the front is the standout feature of the home, a huge lounge that runs the full depth of the house. There is plenty of space for large sofas, a dining table and extra furniture, making it ideal for relaxing and entertaining. Being end of terrace, the room feels bright and open.
To the rear is a separate kitchen with good worktop space and storage. It is well placed for everyday living and easy access from the lounge and hallway. Also on this floor is a bathroom, which is practical for busy households.
First Floor
Upstairs, there are three bedrooms off the landing. The main bedroom is a good size double with space for wardrobes. The second bedroom is also a comfortable double. The third bedroom is ideal as a child’s room, nursery or home office. There is also a separate WC on this floor for added convenience.
Second Floor
On the top floor is a large loft room. This is a great bonus space and could be used as a home office, guest room, hobby room or teenage space. It adds valuable extra living area and gives the home even more flexibility.
Location
Worcester Road is well loved for being quiet and lined with trees, with Hyland Hill Park directly opposite. It offers a calm setting while still being close to local amenities.
Interested in this property?
Call us on 020 3858 0695