
Guide Price £600,000-£675,000 | This bright and spacious three-bedroom home is ideal for families or first-time buyers looking for generous living space and practical features throughout.
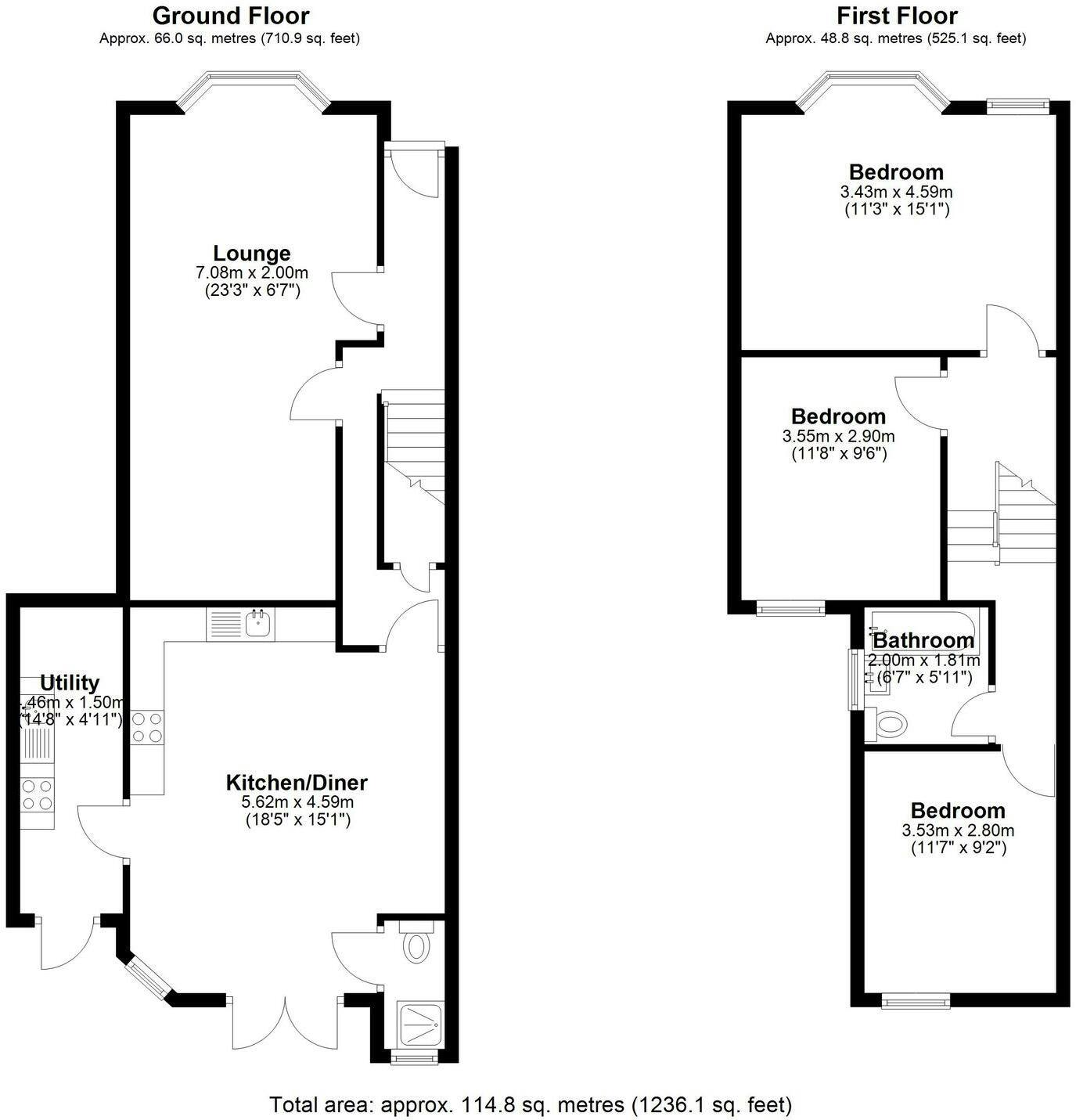
On the ground floor, you’ll find a large open-plan kitchen and dining area – perfect for everyday living and entertaining guests. There’s also a handy utility room and a downstairs WC. To the rear, the extended lounge offers a lovely space to relax, with direct access to the garden.
Upstairs, the home offers three well-proportioned bedrooms – two doubles and a comfortable single that could also work well as a home office or nursery. A modern family bathroom completes the upper level.
Interested in this property?
Call us on 020 3858 0695