Sold STC

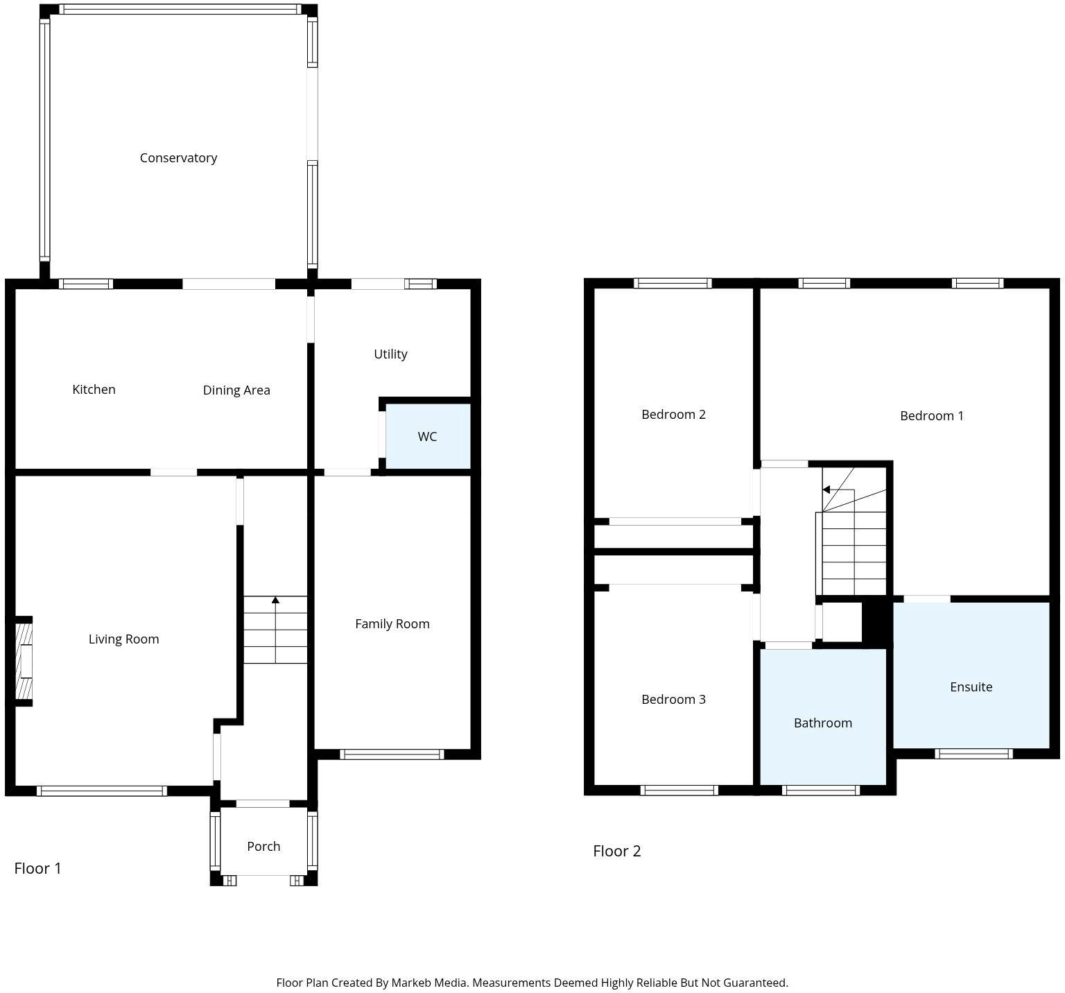
Situated in a sought-after residential cul-de-sac in Edenthorpe, this beautifully presented four-bedroom semi-detached home offers spacious, modern living ideal for families. The property has been thoughtfully extended to provide generous and versatile accommodation, featuring a stylish lounge, a sleek contemporary kitchen with integrated appliances, and a bright conservatory currently used as a dining room.
The ground floor also includes a practical utility room, a modern downstairs WC, and a flexible additional reception room that can serve as a fourth bedroom, office, or family room. Upstairs, there are three well-proportioned bedrooms including a spacious master with an ensuite shower room, along with a beautifully finished family bathroom.
Externally, the property benefits from off-road parking and a private rear garden, perfect for outdoor entertaining. Finished to a high standard throughout, this superb home combines comfort, style, and functionality in one of Doncaster’s most desirable areas—within easy reach of local schools, shops, and transport links.
Interested in this property?
Call us on 020 3858 0695