Sold STC

Modern Semi detached Bungalow situated in a sought after location on the popular Palm Bay development in a quiet cul de sac position.
Offered for sale with NO ONWARD CHAIN
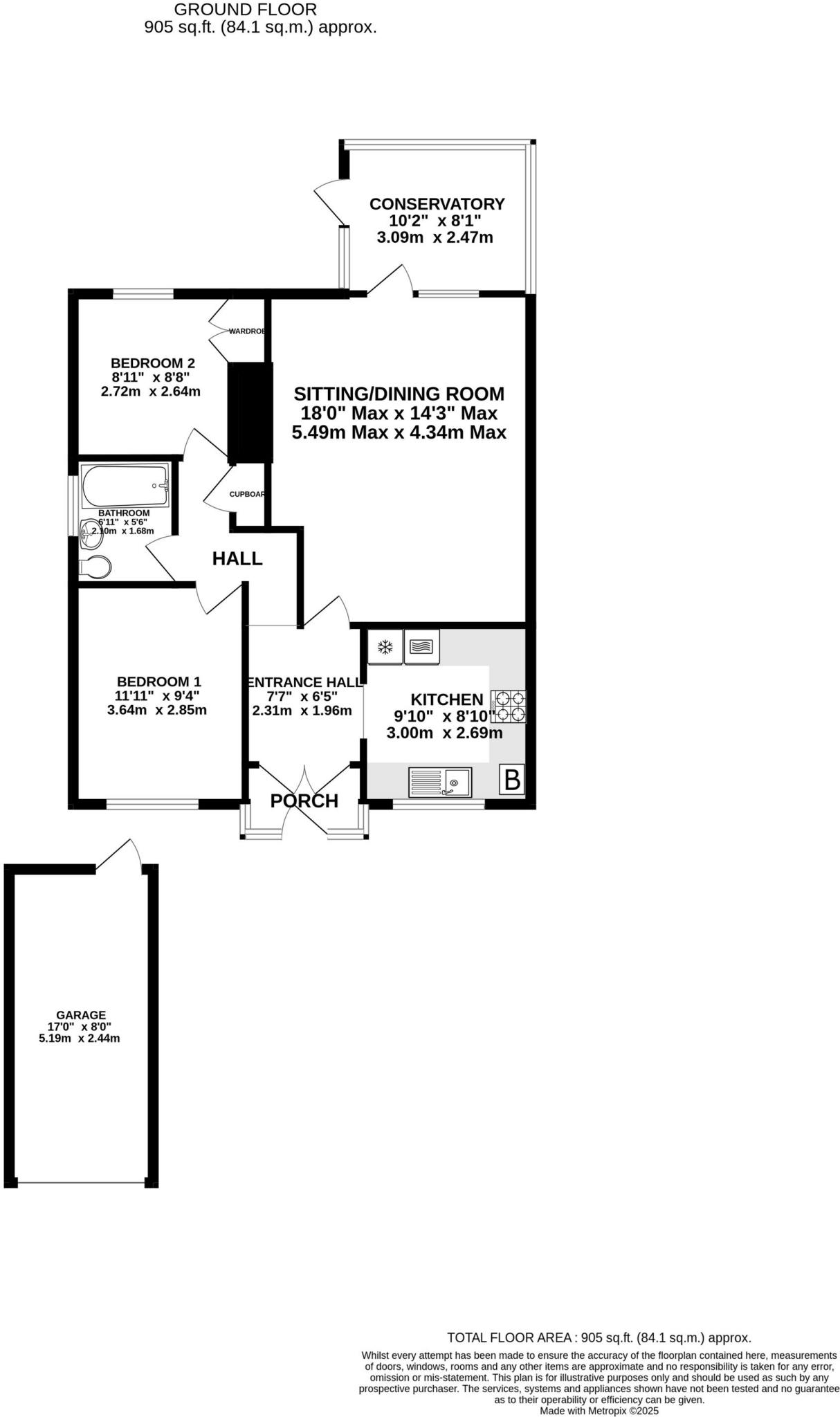
The accommodation comprises, porch leading into the spacious hall, modern fitted kitchen to the front with integrated appliances, two good size bedrooms both with fitted wardrobes, modern Bathroom suite, Large Sitting Room leading out to the double glazed Conservatory overlooking the garden.
Outside. Gardens to front and rear, with garage and driveway.
Local Amenities
Shopping: Residents have access to nearby supermarkets, including a Co-op and Premier Convenience Store within 0.2 miles. Larger retailers such as Tesco (1.29 miles), Aldi (2.31 miles), Iceland, and Morrisons (both approximately 2.67 miles) are also within easy reach.
Recreation: Palm Bay offers recreational spaces and is popular for water sports such as jet skiing. The area lies between Walpole and Botany Bays, providing scenic coastal views and activities.
Transport Links
Bus Services: Multiple bus stops are within a short walking distance, including Palm Bay Primary School (0.10 miles), Harbledown Gardens (0.11 miles), and Springfield Road (0.12 miles). The Thanet Loop, operated by Stagecoach South East, provides frequent services, connecting Margate with Ramsgate, Broadstairs, and Westwood Cross.
Rail Services: The nearest railway stations are Broadstairs (2.0 miles) and Margate (2.18 miles), offering services to London Victoria and London St Pancras via High Speed 1.
Road Access: The A28 road runs through Margate, connecting the town to Canterbury, and Ashford.
Interested in this property?
Call us on 020 3858 0695