
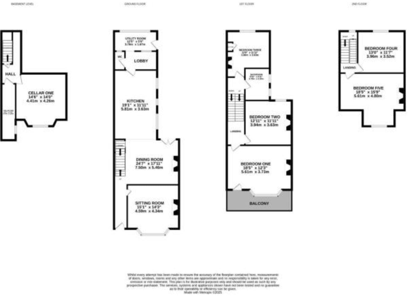
Welcome to this incredible five-bedroom semi-detached house just a stone's throw from the beach. Step inside to find a spacious open-plan kitchen and dining area, perfect for hosting gatherings with friends and family.
As you explore the property, you'll be captivated by the charming character features that add a unique touch to every room. Picture-perfect details, such as intricate mouldings and original hardwood floors, make this house truly special.
Down in the basement, be prepared to be impressed by the stunning cinema room awaiting to transport you to a whole new world. Whether you're enjoying movie nights or simply relaxing after a long day, this cosy retreat is the ideal spot to unwind.
Venture outside to the tiered rear garden, complete with entertaining space for warm summer evenings. Imagine sipping cocktails with loved ones while soaking up the sun in your own private oasis.
Head up to the primary bedroom and prepare to be swept off your feet by the breathtaking views of the sea. Wake up to the sound of waves crashing against the shore and enjoy the natural beauty right from your own bed.
With its unbeatable location just a short walk from the beach, this property offers the perfect blend of coastal living and modern comfort.
Don't miss the chance to make this dream home yours. Book a viewing today and start imagining the unforgettable memories you'll create in this enchanting space.
Identification checks
If an offer is accepted on a property marketed by Nested, all purchasers are required to complete ID verification checks. This is a legal obligation under Anti-Money Laundering Regulations. We use a specialist third-party company to carry out these checks. The fee is £60 (including VAT) payable once the offer is agreed and before the sales memorandum is issued. Please note that this charge is non-refundable.
Interested in this property?
Call us on 020 3858 0695