
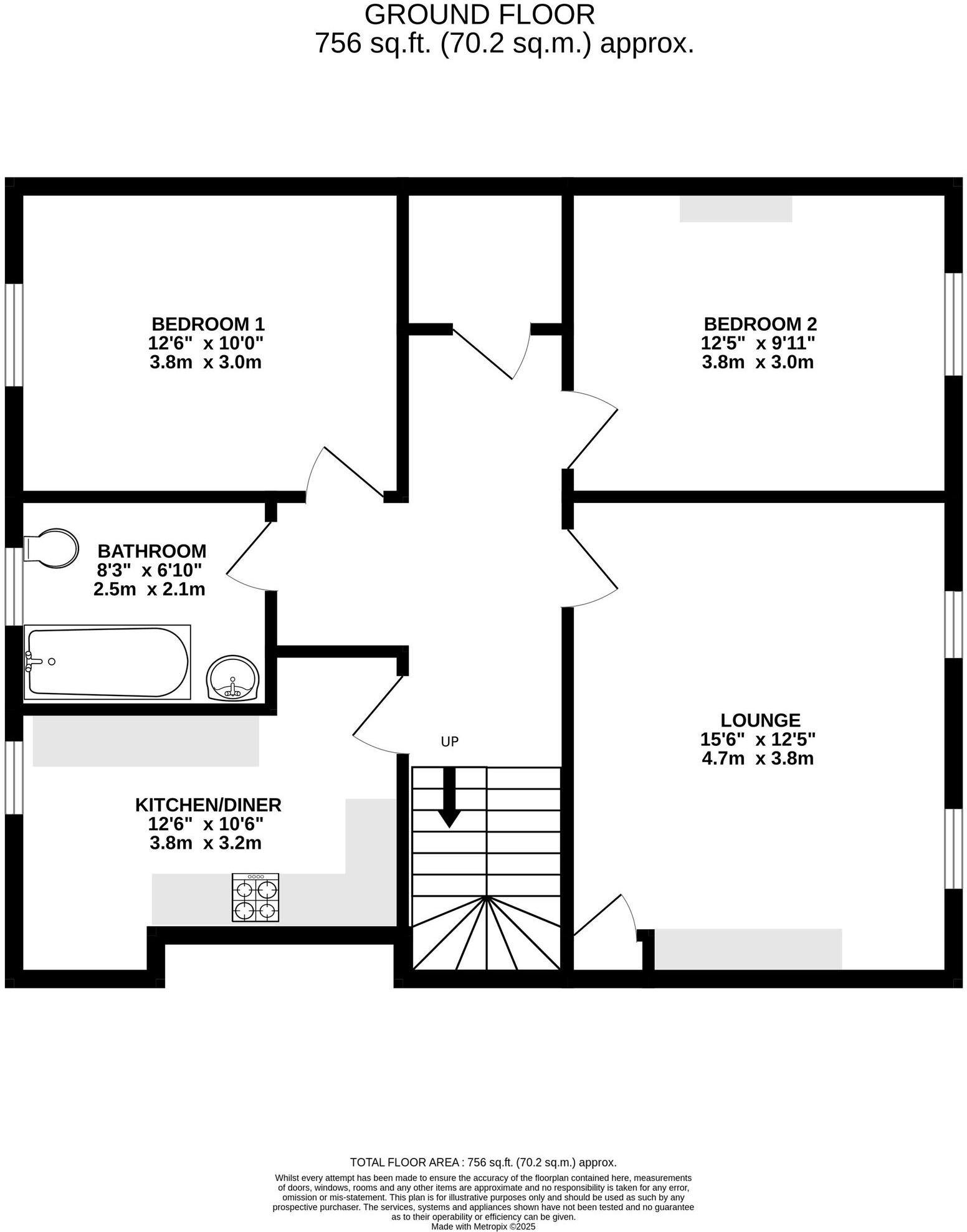
Offering a rare opportunity to acquire a stunning 2 bedroom top floor apartment boasting unparallelled views of Dover Harbour, this property promises a blend of comfort, style, and convenience. The apartment features a bright and spacious living area, two well-appointed bedrooms, a modern kitchen, and a sleek bathroom. Residents will also enjoy access to expansive South facing gardens, providing an ideal spot for relaxation and outdoor activities.
Benefitting from ample on-street parking and being chain free, this property ensures hassle-free living and convenience for its future occupants. With a favourable EPC rating of C, this apartment epitomises energy efficiency and cost-effectiveness.
Perched in a sought-after location that offers picturesque views, this top-floor apartment presents a perfect opportunity for those seeking a comfortable and stylish living space in Dover.
Interested in this property?
Call us on 020 3858 0695