
Being sold via Secure Sale online bidding. Terms & Conditions apply. Starting Bid £655,000
This property will be legally prepared enabling any interested buyer to secure the property immediately once their bid/offer has been accepted. Ultimately a transparent process which provides speed, security and certainty for all parties.
This is your chance to purchase a charming and characterful period residential property, with a commercial element on Deal Seafront which has a history dating back hundreds of years.
THE PROPERTY
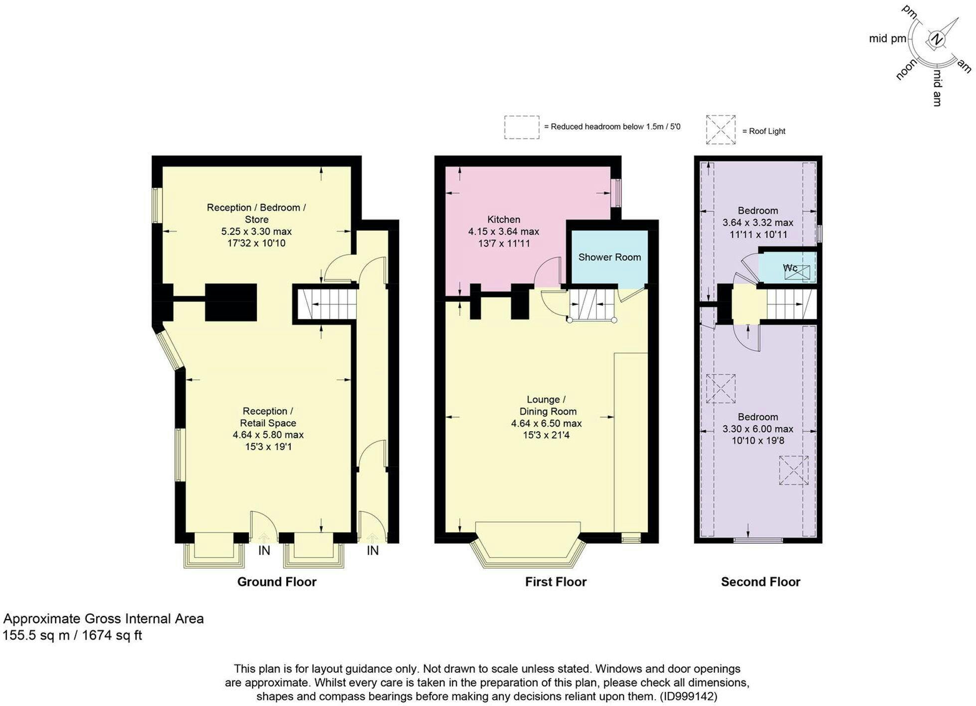
The ground floor is currently being used as a retail business, with living accommodation above that has internal and separate access. There are plenty of ways you could use this charming period property.
One of its finest features, which will make it attractive however it’s used, is the unbeatable location. It has stunning sea views (on a clear day you can see across to France) and is in a on the seafront and right opposite the historic pier.
OPPORTUNITIES
So here are your options:
- Live in and run your business from the ground floor outlet.
- Live in and rent out the shop to bring in additional income.
The final purchase price will be split across the two separate titles as follows:
Freehold @ 35% (The Retail Outlet)
Leasehold @ 65% (The apartment)
Whether you've dreamed of running your own retail business, studio, food outlet or micropub, the busy location right on the seafront will be hard to beat.
This unbeatable, prominent position will give any business high exposure, looking to serve locals and tourists on the seafront, opposite the historic pier.
It’s less than 90 minutes from London, giving access to millions of potential visitors looking for a convenient coastal getaway. Deal Station is only a few minutes’ walk, and the town car park is located behind the premises. Perfect for both shoppers and holidaymakers.
Alternatively, you could:
- Run your business from the ground floor and rent out the accommodation, either as a (BTL) Buy to Let or (FHL) Holiday Let which would also provide you with your very own seaside getaway!
- Rent out both areas of the property with a potential of 13.3% + ROI
If you decide to enter the lucrative holiday let market to take advantage of the UK ‘staycation’ boom, it will attract a premium rate all year round.
And a further option;
If you decided to convert the whole building into dwelling, you’d need to speak to an architect (and the planners, given it’s in the Conservation Area) but there's potential to create one stunning three storey home. Or you could potentially split the property into two apartment units.
If you chose to go with the former, the current three storey layout would lend itself to having a spacious lounge on the ground floor and a kitchen at the rear. This would create space for further bedrooms and bathrooms to be added upstairs.
STEP INSIDE
The whole property is dripping in period charm, with exposed ceiling beams throughout and gorgeous casement windows in the two ground floor bay windows. It really is unique!
The first floor includes a spacious lounge & dining room with a fireplace and raised bay window to the front, giving wonderful sea views.
The kitchen at the rear is homely and welcoming, combining the best of old and new. There’s plenty of space for a dining table or perhaps a kitchen island.
There’s also a shower room on this level.
The top floor has two double bedrooms, the front bedroom giving wonderful sea views. And there's a handy separate WC.
OUT AND ABOUT
This imposing three storey end terrace sits at the gateway from the seafront to the narrow streets that make up Deal’s Middle Street Conservation Area.
The traditional character and feel of the ‘smugglers lanes’ have been preserved, surely one reason why this is such a well-loved & popular part of this historic maritime town.
There’s an awful lot of history contained in these higgledy-piggledy streets, plus many fantastic seafood restaurants, independent shops, pubs & cafes. Not to mention a selection of galleries and antique shops which cater for a discerning clientele.
Do you dream of adding to the fabulous range of attractions or creating a superb place to live and enjoy the best that Deal has to offer? Or both?
The promenade is great for a brisk morning walk with the sunrise or an evening stroll - it extends around a mile to the north towards the golf club or south down to Walmer.
If you prefer country walks and historic sites to strolls along the prom, there’s plenty of choice nearby, including Walmer Castle and the nearby Deal battlements.
For those who favour walks over immaculately mowed fairways and manicured greens, there’s the Royal Cinque Ports and Walmer & Kingsdown golf clubs.
Royal St George’s, Sandwich (which has hosted 15 Open Championships, dating back to 1894) is less than a 20-minute drive away.
This coastal location means you or your short-stay guests may want to use it as a base for foreign day trips. Both the port at Dover and the Eurotunnel terminal at Folkestone are only a short drive away.
Please get in touch today so we can discuss the full ROI opportunities and arrange your private viewing. Holiday let consultancy is also available if you are new to the industry and not sure where to start.
Auctioneers Additional Comments
Pattinson Auction are working in Partnership with the marketing agent on this online auction sale and are referred to below as 'The Auctioneer'.
This auction lot is being sold either under conditional (Modern) or unconditional (Traditional) auction terms and overseen by the auctioneer in partnership with the marketing agent.
The property is available to be viewed strictly by appointment only via the Marketing Agent or The Auctioneer. Bids can be made via the Marketing Agents or via The Auctioneers website.
Please be aware that any enquiry, bid or viewing of the subject property will require your details being shared between both any marketing agent and The Auctioneer in order that all matters can be dealt with effectively.
The property is being sold via a transparent online auction.
In order to submit a bid upon any property being marketed by The Auctioneer, all bidders/buyers will be required to adhere to a verification of identity process in accordance with Anti Money Laundering procedures. Bids can be submitted at any time and from anywhere.
Our verification process is in place to ensure that AML procedure are carried out in accordance with the law.
A Legal Pack associated with this particular property is available to view upon request and contains details relevant to the legal documentation enabling all interested parties to make an informed decision prior to bidding. The Legal Pack will also outline the buyers’ obligations and sellers’ commitments. It is strongly advised that you seek the counsel of a solicitor prior to proceeding with any property and/or Land Title purchase.
Auctioneers Additional Comments
In order to secure the property and ensure commitment from the seller, upon exchange of contracts the successful bidder will be expected to pay a non-refundable deposit equivalent to 5% of the purchase price of the property. The deposit will be a contribution to the purchase price. A non-refundable reservation fee of up to 6% inc VAT (subject to a minimum of 6,000 inc VAT) is also required to be paid upon agreement of sale. The Reservation Fee is in addition to the agreed purchase price and consideration should be made by the purchaser in relation to any Stamp Duty Land Tax liability associated with overall purchase costs.
Both the Marketing Agent and The Auctioneer may believe necessary or beneficial to the customer to pass their details to third party service suppliers, from which a referral fee may be obtained. There is no requirement or indeed obligation to use these recommended suppliers or services.
Interested in this property?
Call us on 020 3858 0695