
This well presented one bedroom retirement apartment offers a rare opportunity to secure comfortable and secure living within a sought-after development, available on a 75% shared ownership basis and presented chain-free for a smooth and hassle-free move.
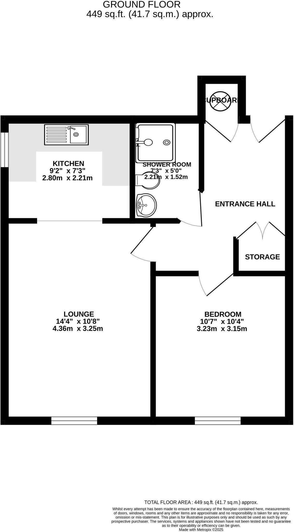
Designed with convenience and peace of mind in mind, the property benefits from lift access to all levels, ensuring easy navigation throughout the building. The apartment itself features a modern kitchen that opens seamlessly into the bright and inviting lounge area, creating a sociable space perfect for relaxing or entertaining guests. The double bedroom is generously proportioned and offers ample space for furnishings, while the stylish and well-appointed shower room is finished to a good standard, providing both practicality and comfort.
Residents of the development enjoy access to a welcoming communal lounge, perfect for socialising with neighbours or hosting family and friends, as well as a dedicated laundry room for added convenience. Residents’ parking is available on a first come, first served basis, ensuring peace of mind for those with vehicles. The property is ideally suited to those seeking an independent lifestyle with the reassurance of a supportive community and well-maintained communal areas.
With its thoughtful layout, modern fixtures and fittings, and excellent communal facilities, this apartment represents an excellent choice for anyone looking to downsize or enjoy retirement living in a secure and friendly environment. Early viewing is highly recommended to fully appreciate all that this exceptional property has to offer.
Ramsgate is a charming seaside town offering a mix of traditional charm and modern conveniences. The town benefits from a variety of local shops, cafés, restaurants and leisure facilities, as well as scenic harbour and coastline.
For commuters, Ramsgate is well connected with a mainline railway station providing regular services to London and other key destinations. Road links are equally convenient, with easy access to the A299 and the wider Kent road network, making it an ideal location for both retirement living and regular travel.
Buyers Information (Identification checks)
Should a purchaser(s) have an offer accepted on a property marketed by Nested, they will need to undertake an identification check. This is done to meet our obligation under Anti Money Laundering Regulations (AML) and is a legal requirement. We use a specialist third party service to verify your identity. The cost of these checks is £60 inc. VAT per purchase, which is paid in advance, when an offer is agreed and prior to a sales memorandum being issued. This charge is non-refundable under any circumstances.
Interested in this property?
Call us on 020 3858 0695