Sold STC

A charming two bedroom home set within a quiet residential position in the heart of Halstead, Essex. Offered with no onward chain, the property enjoys bright and open plan accomodation over two floors, making it an ideal choice for first time buyers, downsizers, or those seeking a low maintenance home in the heart of Halstead.
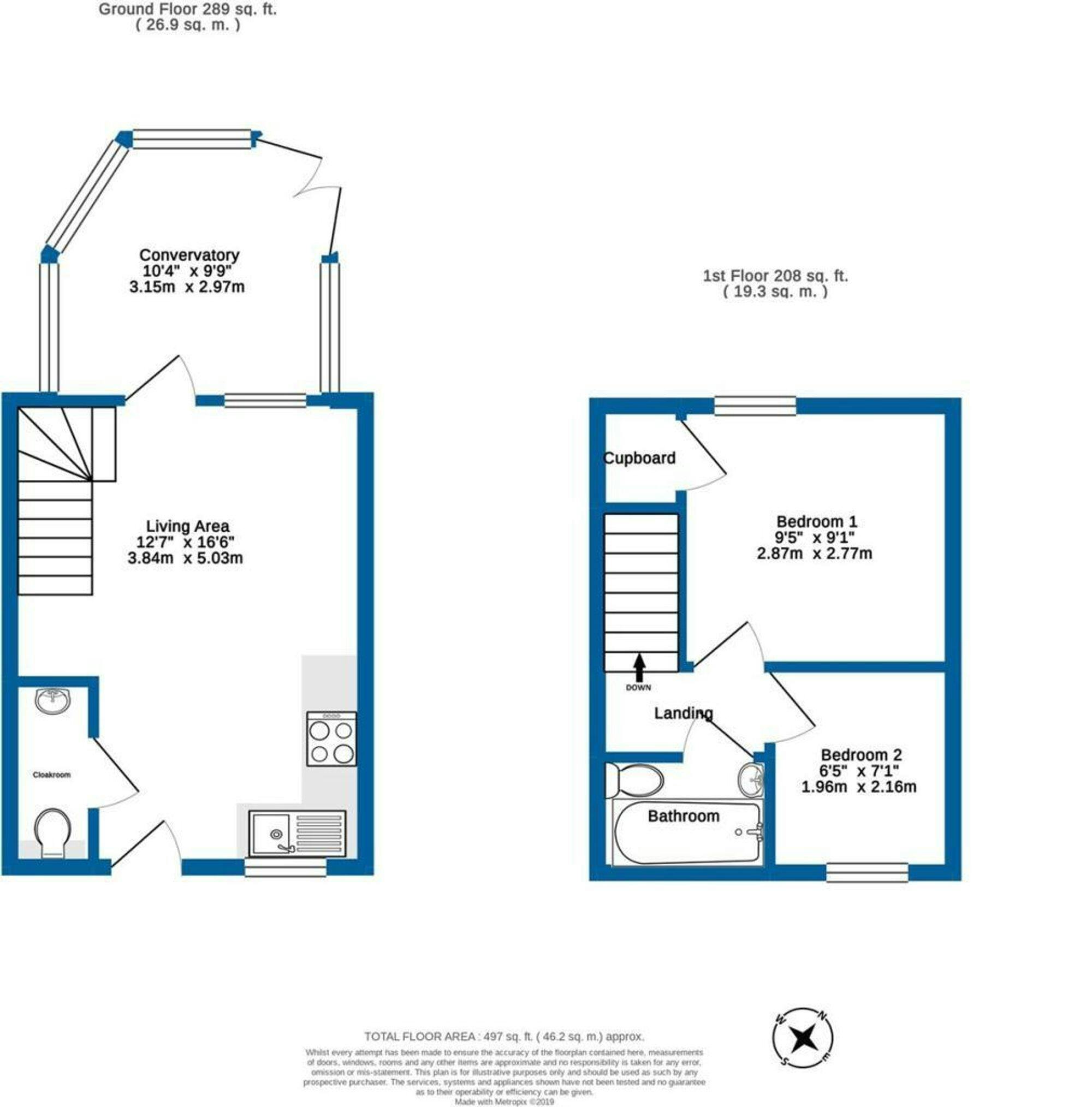
The ground floor features a spacious open plan living and kitchen area leading to a conservatory which provides additional living space with pleasant views over the garden, while a convenient cloakroom completes the ground floor. Upstairs are two bedrooms, including a comfortable double and a versatile second room, along with a well appointed bathroom and useful storage.
Located in the desirable market town of Halstead, the property is within easy reach of the High Street, offering a range of independent shops, cafes, and historic buildings. Scenic walks can be enjoyed along the River Colne and within the Victorian public gardens, with good transport links to Colchester and Sudbury making the town well placed for commuters.
Agents note - Some of the photos have been virtually staged to give buyers a better idea of the available space.
Interested in this property?
Call us on 020 3858 0695