Sold STC

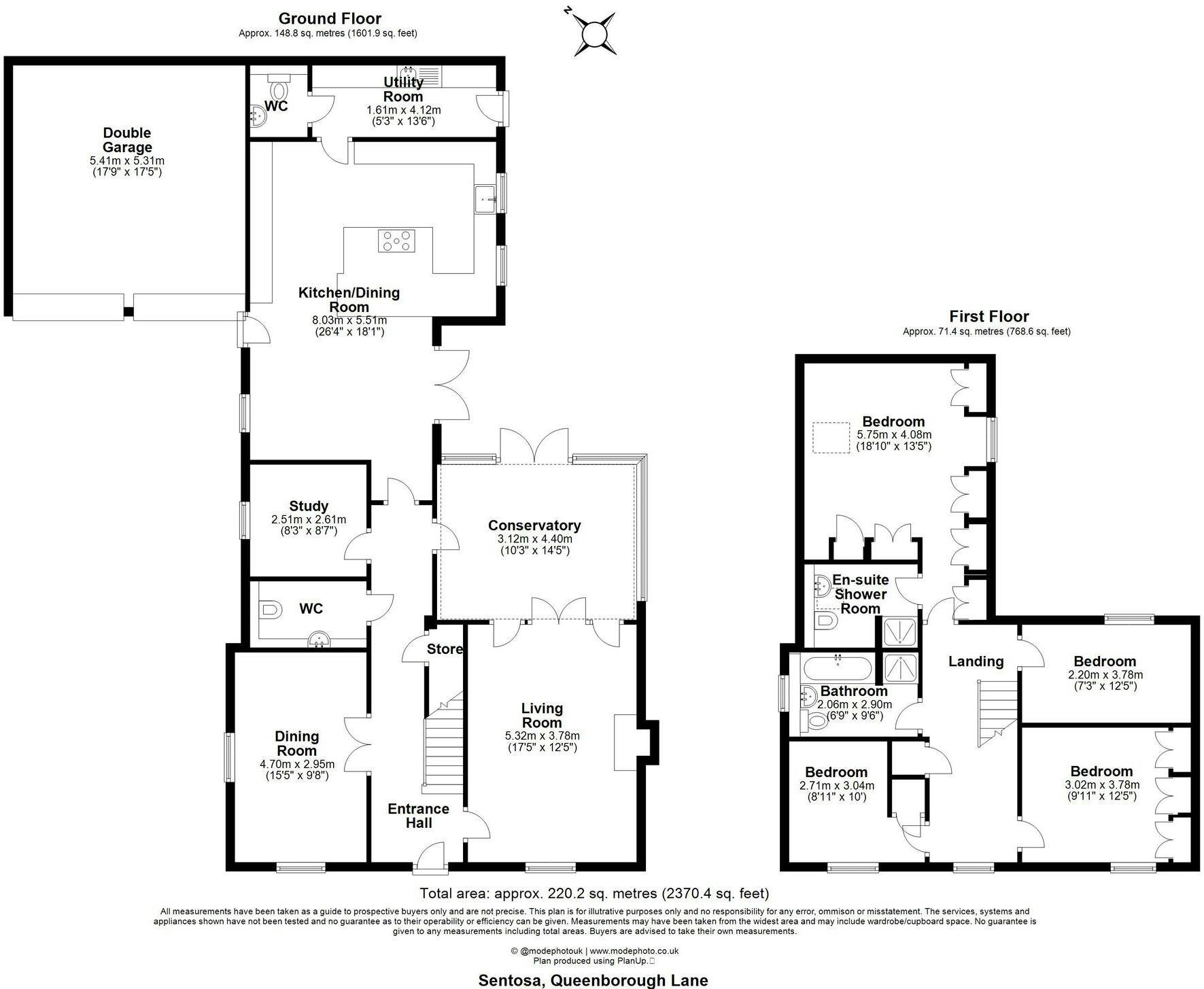
Situated on the sought after Queenborough Lane in Great Notley, this impressive detached family home offers generous and versatile living accommodation. The ground floor comprises an entrance hall, a spacious kitchen/dining room, two reception rooms, a conservatory, a study, utility room, and two cloakrooms. Upstairs, there are four bedrooms, including a primary bedroom with en-suite shower room, along with a family bathroom. To the front, the property includes a large driveway, with EV charging point, leading to a double garage. To the rear there is a lovely secluded, low maintenance garden.
Great Notley is a popular village offering a strong sense of community and a wide range of amenities. The area is home to the expansive Great Notley Country Park, ideal for walking, cycling, and family days out. The village also features a selection of shops, cafés, schools, and healthcare facilities. For commuters, the nearby A120 provides quick access to the M11 and Stansted Airport, while Braintree railway station offers direct services into London Liverpool Street.
Interested in this property?
Call us on 020 3858 0695