
Positioned quietly on the inside of this desirable development at the heart of the city, this beautifully presented 2- bedroom first floor apartment offers an exceptional balance of tranquility and convenience, just moments from Bristol’s vibrant centre and the huge benefit of an allocated secure parking space.
The apartment is accessed via the quieter Williams Street, where secure gated entry leads into a private parking area with an allocated secure space. A further coded entrance opens into a well maintained communal hallway, with stairs rising to the first floor.
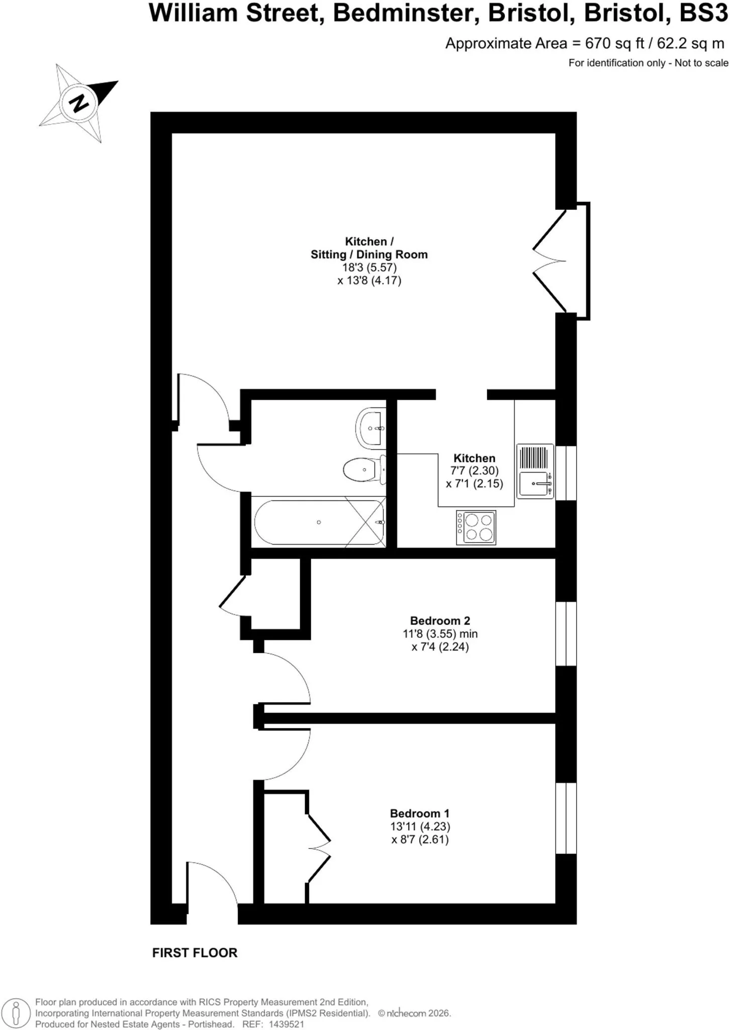
Internally, the property is thoughtfully arranged and filled with natural light. A welcoming hallway leads through to a generous open plan living space, where large glazed doors open inward to a Juliette balcony, creating a bright and airy focal point ideal for both relaxing and entertaining.
The adjoining kitchen is well appointed, featuring a range of fitted wall and base units, granite effect work surfaces, a stainless steel oven and hob with extractor, and space for essential appliances, all complemented by a window allowing for additional natural light.
Two well proportioned double bedrooms offer comfortable accommodation, while the bathroom is fitted with a clean and modern three piece suite. A useful storage cupboard completes the internal layout.
The property is exceptionally well connected, with Temple Meads Station approximately a fifteen minute walk away, offering direct links to London and beyond. Metrobus services, Bedminster train station and major road networks including the M32, M5 and M4 are all easily accessible, making this an ideal base for both city living and commuting.
This is a rare opportunity to acquire a stylish and well located home that seamlessly combines peaceful surroundings with immediate access to everything Bristol has to offer.
Other Information
Leasehold: 125 years from 1st January 2003
Ground Rent: £311 Per six monthly
Management Fee: £1715 Annually
Council Tax Band: B
Water is included in maintenance charges
No Gas supply and Electricity charges are low.
Interested in this property?
Call us on 020 3858 0695