
Set within the well-regarded village of Easton-in-Gordano, this substantial detached home enjoys a highly convenient yet peaceful position, offering an appealing balance between village living and excellent connectivity. With nearby access to the M5 and wider motorway network, the property is particularly well suited to those commuting to Bristol, the surrounding business hubs, or further afield, while still benefiting from a quieter residential setting with a strong sense of community.
The property is approached via a generous driveway providing ample off-road parking for five to six vehicles, leading to a further side and rear parking and turning area. From here, there is access to an impressive detached garage block of almost quadruple proportions, fitted with an electric roller door, power, and lighting, offering excellent secure parking and storage.
Midway along the driveway, steps rise to a side entrance where a modern uPVC door opens into a spacious vestibule, which in turn leads into a particularly light and welcoming entrance hallway. This space sets an immediate tone of quality, featuring engineered oak flooring, a contemporary staircase to the first floor, a large storage cupboard, and a stylish cloakroom fitted with a modern suite.
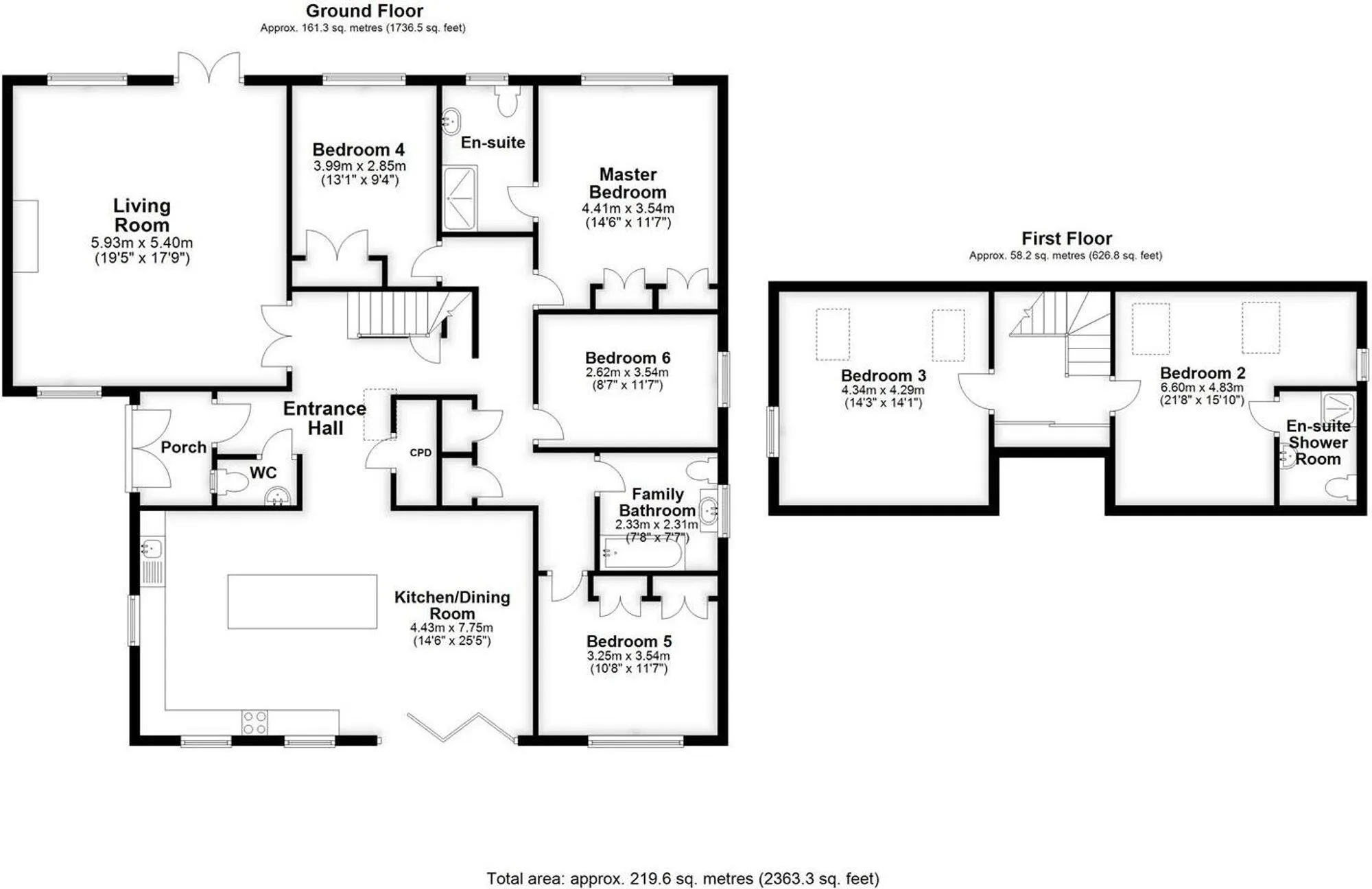
To the front of the property lies a standout feature: a superb open-plan kitchen, family, and dining room measuring approximately 25’ x 15’. Designed with modern living in mind, this space is ideally suited to both everyday family life and entertaining on a larger scale. The kitchen is fitted with an extensive range of shaker-style cabinetry complemented by solid oak worktops, and centred around a generous island providing additional preparation space. Integrated appliances include a five-burner gas hob, an electric fan oven with an extractor, a dishwasher, and a washing machine, along with space for an American-style fridge/freezer. A one-and-a-half-bowl sink with a mixer tap completes the specification. Dual-aspect windows allow natural light to pour into the room throughout the day, while the dining area comfortably accommodates a large table. Bi-fold doors open directly onto a private breakfast terrace, creating a natural extension of the living space and encouraging easy indoor-outdoor living. Engineered oak flooring continues seamlessly from the hallway, enhancing warmth and continuity.
Double doors off the hallway lead into the main living room at the rear of the house, a bright and inviting space with windows on two sides and south-facing patio doors that maximise sunlight throughout the day and enhance connectivity to the garden. A charming fireplace with an oak-beamed mantel forms a focal point, adding character and a sense of comfort, making this an ideal room for both relaxing and entertaining.
To the rear of the ground floor, the hallway flows into a dedicated bedroom wing area, finished also with the same quality oak flooring. This area offers excellent flexibility, including useful storage and utility cupboards, and gives access to four well-proportioned double bedrooms. The principal bedroom is particularly impressive, featuring built-in wardrobes and a spacious en-suite shower room with a contemporary suite. Bedrooms four and five also benefit from fitted storage, adding to the practicality of the layout. The family bathroom has been newly fitted with a modern three-piece suite and finished with stylish tiling to both walls and floors, creating a clean, contemporary finish.
Stairs rise to the first-floor landing, where a Velux skylight provides additional natural light. A useful storage cupboard is also located on the landing, along with access to bedrooms two and three. Bedroom three benefits from its own en-suite shower room, offering an ideal arrangement for guests or older children seeking privacy and independence.
In summary, this is a well-balanced and generously proportioned family home offering versatile accommodation, excellent parking, and beautifully landscaped outdoor space. Positioned within the popular village of Easton-in-Gordano, it combines a peaceful residential environment with excellent transport links and everyday convenience, making it a highly practical and appealing place to live.
Interested in this property?
Call us on 020 3858 0695