Sold STC

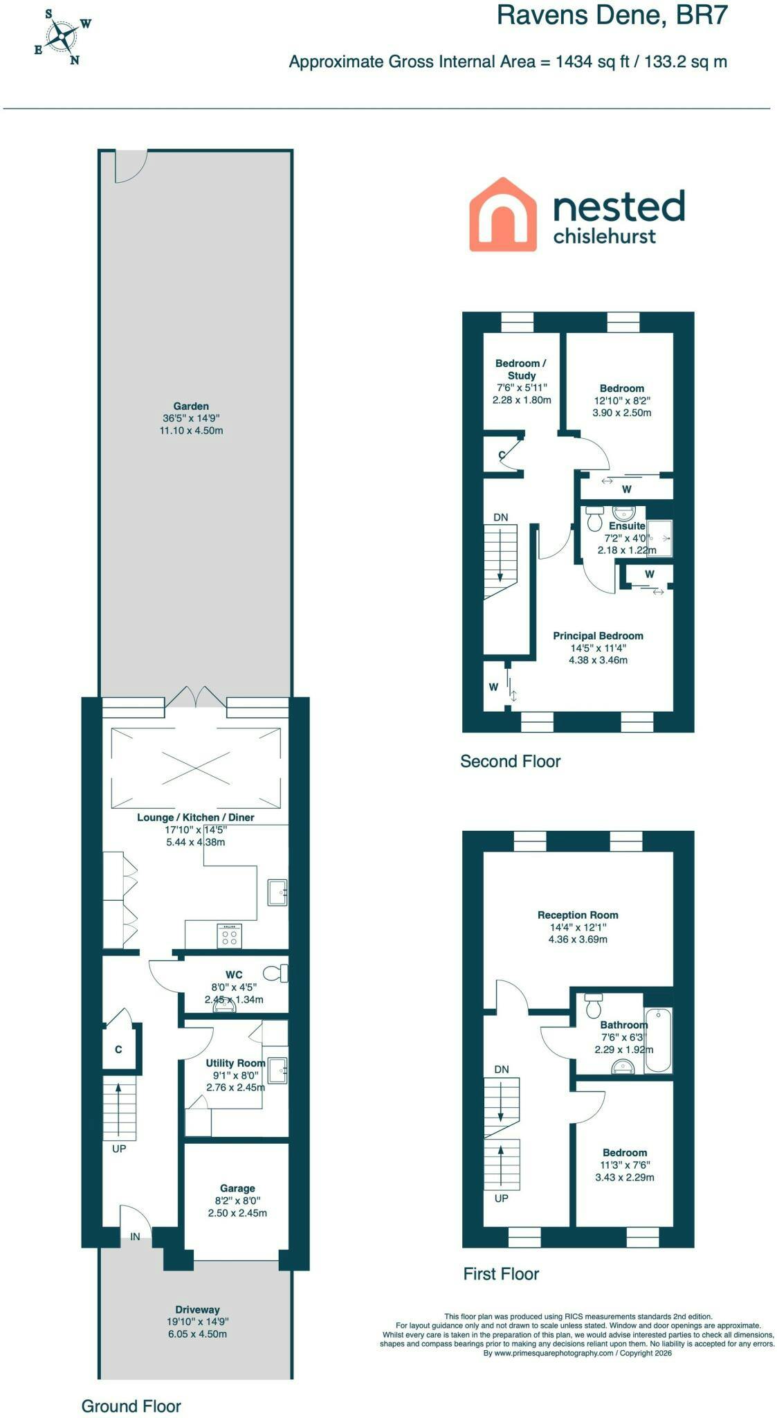
GUIDE PRICE £600K - £625K. Occupying a quiet position on a sought after modern development close to the heart of Chislehurst, this stunning four bedroom terraced family home, with landscaped garden, off street parking and garage. This wonderful home, beautifully maintained and appointed by the current owners, offers generous accommodation arranged over three floors, with versatile layout, high quality finish and stylish interiors throughout. Ideal for modern family life, the property provides the perfect blend of comfort and convenience in this fantastic residential area. Features include an inviting open plan lounge/kitchen/diner with separate utility, flexible first floor reception room, first floor family bathroom, principal en-suite, gas central heating, double glazing, ample inbuilt storage and quality floor coverings.
Externally, the rear garden is a haven of tranquillity, with areas of decking and all-weather surface lawn providing the perfect space for al fresco entertaining and relaxing.
Accommodation comprises entrance hall with access to guest WC, leading into the rear lounge/kitchen/diner, flooded with natural light, with double doors spilling out onto the garden. The kitchen area comprises a high quality range of matching wall and base units, with work surfaces and breakfast bar area incorporating inset sink unit, induction hob, wall mounted double oven and further integrated appliances. A utility room provides additional work and appliance space. To the first floor, there is an inviting rear aspect reception room, plus a further bedroom and modern family bathroom. The second floor provides a further three bedrooms – two doubles and a single/study – with en-suite shower to the principal bedroom.
The property is conveniently located moments from Elmstead Woods station, with numerous regular bus routes offering good connections to the surrounding area. Chislehurst High Street is close-by for a variety of fashionable shops, bars and restaurants, with Sidcup and New Eltham also within easy reach for a wider selection of shops and amenities. The area is also well served by good local schools including Bullers Wood, Babington House, and Farringtons, as well as lovely open spaces.
Viewings are highly recommended.
Agent Notes
All details are based on information supplied by the seller and should be verified by your solicitor prior to exchanging contracts.
Reason for selling: Downsizing
Sellers Situation: Suitable property found
Subject to a grant of probate: No
Subject to a tenancy: No
Parking arrangements: Off street parking
Council tax band: F - £2950.22pa
House age: 2010s
Type of heating system: Gas central heating
Heating system age: 12 years
Loft: Not boarded but insulated
Tenure: Freehold
Estate charge: £365pa
Interested in this property?
Call us on 020 3858 0695