Sold STC

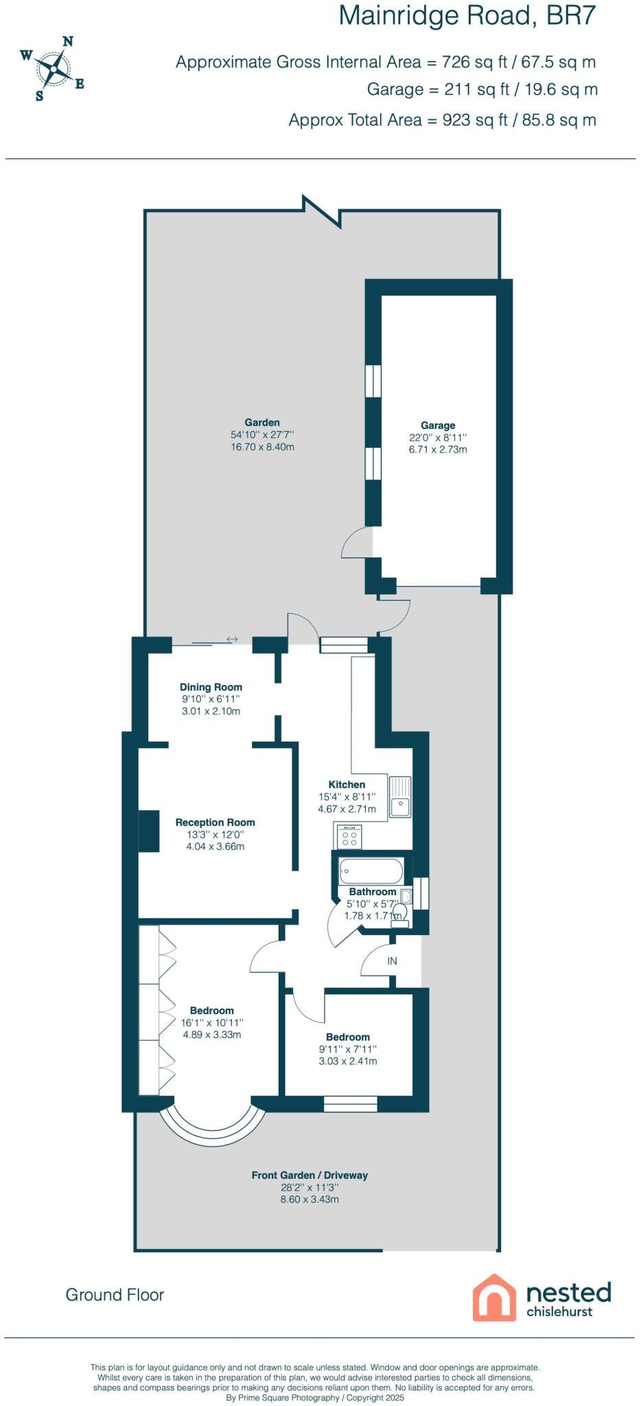
Occupying a quiet and sought after residential location within easy reach of the centre of Chislehurst, transport links and amenities, this wonderful two bedroom semi detached bungalow with landscaped private garden, off street parking and private garage. The property has been superbly appointed by the current owners, offering bright and spacious accommodation with stylish interiors and high quality finish throughout - the perfect blend of comfort and convenience for a modern lifestyle. Features include an inviting open plan reception/dining room, high gloss fitted kitchen, modern bathroom, quality floor coverings, inbuilt storage, gas central heating, double glazing and neutral décor.
Accommodation comprises entrance hall leading into the reception/dining room, flooded with natural light from sliding doors which spill out onto the garden. The separate kitchen, also with garden access, comprises a modern range of matching high gloss wall and base units with work surfaces, incorporating inset sink unit, induction hob with overhead extractor, electric oven, and further space for appliances. To the front of the property, there are two well proportioned bedrooms – with inbuilt wardrobes to the principal bedroom - plus a family bathroom with modern bath suite.
Externally, the garden is laid to areas of patio, raised terrace and lawn – ideal for summer evenings and al fresco entertaining.
The property is conveniently located in a quiet position within easy access of Elmstead Woods, New Eltham and Chislehurst stations, as well as numerous regular bus routes offering good connections to the surrounding area. Chislehurst is close-by for a variety of fashionable shops, bars and restaurants, with Sidcup, Orpington and New Eltham also within easy reach for a wider selection of shops and amenities. The area is also well served by good local schools and beautiful open spaces.
Viewings are highly recommended.
Interested in this property?
Call us on 020 3858 0695