
Presenting a fantastic investment opportunity, this spacious one-bedroom flat is offered for sale via Secure Sale online bidding (terms and conditions apply), with a starting bid of £155,000.
The property is end of chain, allowing for an immediate exchange of contracts subject to terms and conditions, providing a smooth and efficient purchase process for buyers.
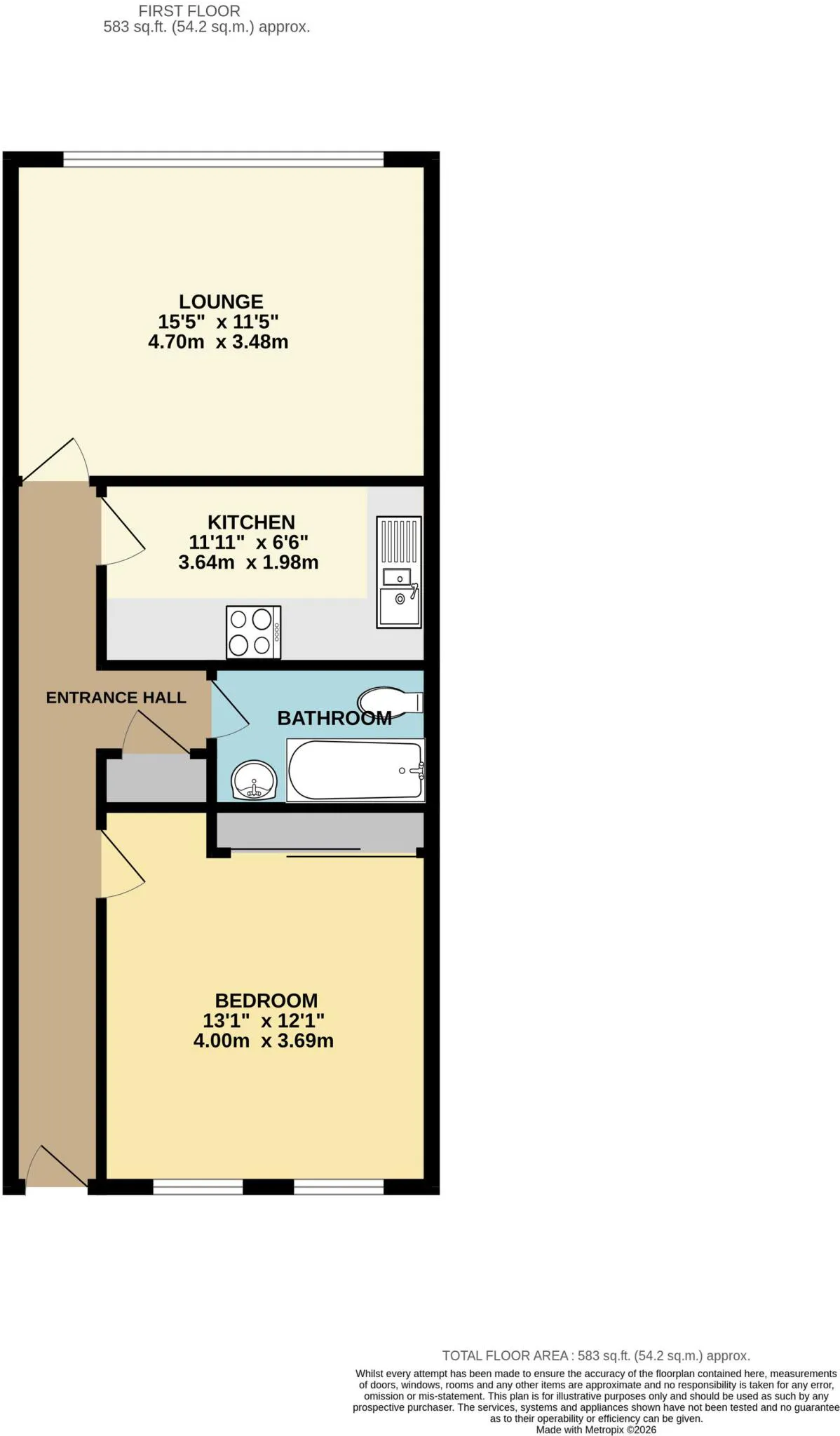
Featuring a large lounge and generously sized bedroom, the flat offers comfortable accommodation with excellent potential for personalisation or rental purposes.
The property benefits from a highly desirable location within walking distance to both Beckenham Junction Train Station and Clockhouse Train Station, ensuring convenient access to central London and surrounding areas, making it ideal for commuters and those seeking vibrant local amenities. With a current lease of 61 years, a quote of approximately £22,000 has been provided for a lease extension using market standards calculators (subject to negotiations with the freeholder), which is reflected in the competitive asking price. Once the lease is extended, the estimated value of the property is £245,000, underlining the exceptional value and scope for capital growth.
This property represents a rare chance to secure a well-proportioned flat in a sought-after area at a bargain price, making it an attractive proposition for investors and first-time buyers alike. Early viewing is highly recommended to fully appreciate the size, location, and investment potential on offer.
Being sold via Secure Sale online bidding. Terms & Conditions apply. Starting Bid £155,000
Immediate ‘exchange of contracts’ available
This property will be legally prepared enabling any interested buyer to secure the property immediately once their bid/offer has been accepted. Ultimately a transparent process which provides speed, security and certainty for all parties
Pattinson Auction are working in Partnership with the marketing agent on this online auction sale and are referred to below as The Auctioneer.
This auction lot is being sold either under conditional (Modern) or unconditional (Traditional) auction terms and overseen by the auctioneer in partnership with the marketing agent.
The property is available to be viewed strictly by appointment only via the Marketing Agent or The Auctioneer. Bids can be made via the Marketing Agents or via The Auctioneers website.
Please be aware that any enquiry, bid or viewing of the subject property will require your details being shared between both any marketing agent and The Auctioneer in order that all matters can be dealt with effectively.
The property is being sold via a transparent online auction.
In order to submit a bid upon any property being marketed by The Auctioneer, all bidders/buyers will be required to adhere to a verification of identity process in accordance with Anti Money Laundering procedures. Bids can be submitted at any time and from anywhere.
Our verification process is in place to ensure that AML procedure are carried out in accordance with the law.
The advertised price is commonly referred to as a ‘Starting Bid’ or ‘Guide Price’ and is accompanied by a ‘Reserve Price’. The ‘Reserve Price’ is confidential to the seller and the auctioneer and will typically be within a range above or below 10% of the ‘Guide Price’ / ‘Starting Bid’.
These prices are subject to change.
Interested in this property?
Call us on 020 3858 0695