
A central, beautifully presented Grade II listed Georgian townhouse with South facing terrace, boasting a wealth of period features and filled with natural light. Located less than 5 minutes walk from the 57 acre Victoria Park, 10 minutes walk from Bath High St and 15 to Bath Spa train station, it is currently an AirBnB generating £60,000 net of online platform fees a year, but would equally make a fantastic family home complete with spacious master suite, large second bedroom, generous family bathroom plus two further bedrooms. The property can sleep up to 7 people.
THE HOUSE
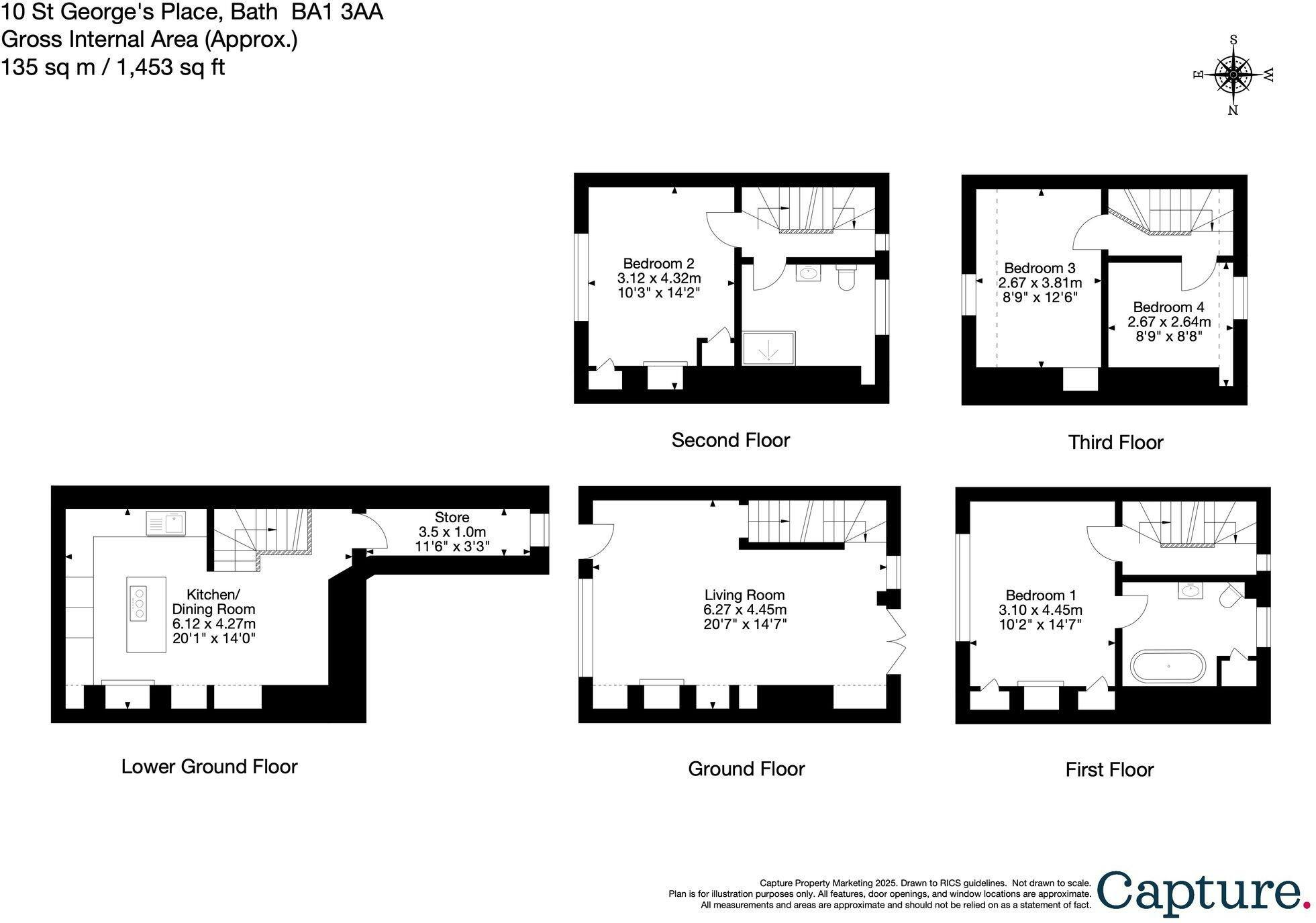
10 St George's Place is proudly spread over 5 floors. Walking through the main entrance, you are greeted by a characterful dual aspect lounge area with a large window to one side and the dining area to the other. From here, double doors lead out to a pretty South facing terrace which catches the sun from noon to sunset.
Down a set of original Bath stone steps is the basement level which hosts the kitchen and dining areas. This is a beautifully crafted space, juxtaposing a sleek, modern kitchen with solid wood floors, original beams, an exposed Bath stone wall and large original fireplace at its centre. There is an integrated double oven and grill, integrated dishwasher, washing machine and fridge freezer.
There are three further levels. The first comprises of a generous master suite which occupies its own floor. Complete with built-in storage, working fire and a large double window, the bedroom is spacious, bright, yet cosy. The en-suite bathroom is contemporary and generously proportioned with a free-standing bath.
On the next level, you will find the second bedroom, again of generous proportions and bathed in light from the double sash windows to the front. Next to this is the contemporary family bathroom with large shower and integrated storage.
On the top floor is the third bedroom, again, bright and spacious. Next to this is a flexible space which could be used as a child's bedroom or as an office.
Interested in this property?
Call us on 020 3858 0695